01 基本信息
九陌公司新址位于海岸时代公寓(海岸卡夫诺)的东座,坐落于南山一甲片区(南头片区),深南大道与前海路交汇处。 这间复式办公场所是九陌空间设计自主设计、装修的办公室,作为九陌的设计师们2020年新的办公场所。

项目主创 | Echo
设计指导 | Lawn
项目面积 | 105 ㎡
设计公司 | JOM 九陌空间设计
编辑排版 | Elliot
摄影团队 | 云时摄影
出品版权 | JOM 九陌空间设计
02 概念图
鸟瞰图©Echo


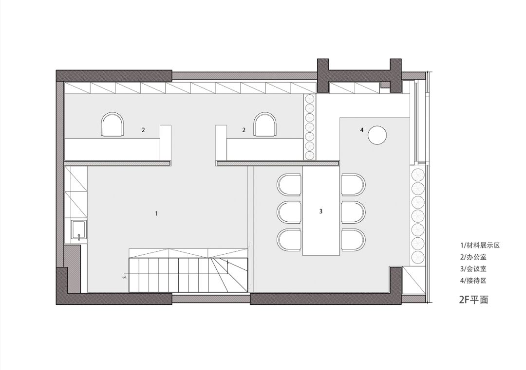
平面图 ©Echo


03 设计师访谈
01
Elliot:设计师更多的是在设计他人生活、工作的场所,我蛮好奇使用亲自设计的场所的体验是怎样的?
Lawn:使用过程的体验还是不错的,只是几点遗憾的地方,因受场地的层高和现状限制,入口处原背景墙下本设计了枯山水的造景,地面打不了就放弃了,二层吊顶只有2.1米,坐下尺度还行,站立的话若再高个10CM就正好(受梁的限制),钢楼梯的安装也有遗憾,应该直角朝上,折弯朝下,这样下面过人不容易磕到,楼上的会客区是最愿意待的地方,可以很放松。
Echo:尺度感的体验,现场比预期更好。不满意的还是一些细节的处理及现场不可控的一些施工的把控。
02
Elliot:我发现海岸时代大厦有一个有趣的地方,就是每个公司都要把5.8米层高分为两层,在设计中这样的分层有没有造成设计难点?您又是如何应对的?
Echo:层高限制在空间创造上,确实是个挑战。首先一层空间,梁的数量多且位置杂乱无规律,在保证使用频繁的办公区2.6米高度的基础上,休息区及过道齐梁吊顶,同时,楼梯空间的天花向上退及天花藏灯等手法,减少被压低空间的压迫感,及增加空间的延伸感。然后是卫生间,楼梯及一层天花之间的空间关系的处理。这些都是基于空间尺度限制,进行反复测量及设计,以达到功能与美感的最恰当的契合。
Lawn:这点可以补充一个细节,就是当初设计师选用清水地坪,但因为时间和成本上耗时太多,也会占用一些层高,就改用自流平了,给有限的层高再腾出空间,也更舒适了。
03
Elliot:有没有您比较喜欢的设计大师?
Echo:柯布西耶我大学的时候很喜欢,还有安藤。
Lawn:没有说特别喜欢哪一个设计大师,而是我觉得每个大师都有各自的优点,特别是对材料的研究,新材料的应用,都会有他独到之处,设计手法、针对不同空间、案例的思路,都能从中学到一些经验,比如什么样的空间你更愿意静静的去坐在那里读书或者是沉浸式工作,什么样的场所应用的情境是否达到设计时候所想的那样,比如你在这里开会、在那里闲谈,这些空间各自独立又有所联系,不是断开的,很流畅。
04
Elliot:您的设计理念是什么,在这套方案中是如何体现的?
Lawn:对我来说,从建筑师角度做室内更看重结构性的东西,所以很多事情基本上是从空间尺度来推敲的,不是说要贯彻什么设计理念,如果要说一个思路的话,就是简约、舒适、开放,打破传统办公室的封闭感,不要一个一个封闭的室内空间。比如隔断的部分基本上是用铁艺架,甚至二楼的办公室都没有做门,用于保证客户谈话私密性的玻璃门也是可以折叠起来,平时的视线都是敞开的状态,也最大程度的利用了自然光,当然有个麻烦就是不隔音。很多细节和想法并不是每一个都会落地,而是在这个过程中不断调整。
05
Elliot:我注意到休闲区的不锈钢地皮、镜面墙很有意思,这个想法是如何来的?
Echo:我之前的想法是在休闲区天花/地面一起用不同的材质,与办公空间区分开来,做成一个“盒子”的概念,但最后种种原因,天花还是用了乳胶漆。
Lawn:充分利用楼梯下的空间,在死角位置布置生态鱼缸,将洗手间的门隐蔽在楼梯下,为侧面的休闲区腾出逗留空间,洗手间的门如果对着沙发,谈事喝咖啡都感觉不太好。镜面墙很好的起到一个视觉空间延伸的作用,打破面积小造成的逼仄感。
06
Elliot: 您觉得新公司设计落地的满意吗?
Lawn:整体来说还行吧,是一个设计之初想要的样子。三周时间赶出来的工程,有一些细节没能落地,一些细节的处理也不是完美,不过现在也觉得一开始也不用弄那么满,我们一边在使用、感受,一边去添加一些新的东西,也是不错的。
07
Elliot:有没有哪个功能是最遗憾没有做成的?
Lawn:还缺一个员工的读书看书的图书角吧,我更希望设计师们不是被绑在座位上,而是多互动多交流,甚至是不要老在公司待着(笑声)。
04 施工现场










05 实拍场景 ©云时摄影
▽ 入口橱窗,在原始橱窗基础上,用镌刻方式的锈板的粗糙质感,打破整个极简空间的格调,形成质感与空间的对比。


▽ 主入口,用铁艺的虚空间及光的指引划分出入口空间,将视觉焦点引导在整个形象墙。

▽ 1F休闲区




▽ 1F工作区,同一色调用不同的材质、手法来表现空间的层次感。灰色自流平中和了白色与其他元素的对比,使视觉层次更加丰富。




▽ 1F工作区局部

▽ 1F楼梯口视图



▽ 楼梯处镂空板细节


▽ 2F楼梯口视图

▽2F局部

▽2F办公室入口


▽办公室局部,用镂空的柜体划分空间,功能划分的同时,增加空间的虚实感。

▽2F休闲区看向办公室

▽2F会议区



06 合作品牌
自流平:欧尼可Onico
木板:完美生活家居
瓷砖:华鹏瓷砖