
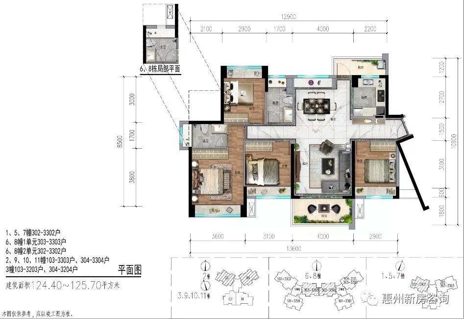
在售高层均价:17000元/㎡(毛坯)户型:100㎡三房-115㎡四房-125㎡四房-136㎡五房-162㎡五房;
在售小高层洋房均价:17500~18500元/㎡(毛坯)户型:150㎡五房-172㎡六房
欢迎新老客户前来参观看房选房,看房车辆免费接送,省外客户报销来回费用

星河控股集团成立于1988年,历经30年发展,旗下现有地产、金融、置业、产业四大业务集团。业务涉及地产开发、城市更新、商业运营、酒店管理、物业服务、金融投资、产业运营等多元领域。版图覆盖珠三角、长三角、京津冀三大重要城市经济圈,为国内大型综合性投资集团。商业运营规模逾180万㎡,逾1000亿资产,连续七年荣膺中国房地产百强企业称号,多次荣膺中国蓝筹地产奖项。

深圳市星河智善生活有限公司(简称:智善生活),成立于1999年,为星河控股集团下属的全资企业,现为国家一级物业管理企业,2016年在新三板顺利挂牌(证券代码:836397)。
经过近二十年的发展,智善生活已成为集提供全方位物业服务、小区智能化化工程服务、物业租售服务、绿化工程、物业管理顾问及会所经营为一体的专业化物管公司,不仅在业界收获了良好的声誉,也在客户群积累了大量的口碑,成为全国物业百强企业之一。
惠州星河丹堤位于粤港澳大湾区腹地中心,紧邻双铁枢纽——惠州南站,项目总占地约150万㎡ ,建面约260万㎡ 。

星河丹堤是星河集团在惠州的开山之作,整体分为多期进行开发建设,首批产品已于2011年11月面世,目前开发至第6期,整体产品主要由别墅、洋房、高层组成。

▲项目总规划图

粤港澳大湾区、深圳东进、港深惠一小时生活圈
星河丹堤地处粤港澳大湾区南站新城片区,荣属深莞惠发展合作示范区,享深圳东进红利,蓄势待发。
地处双铁中央核心区域的星河丹堤拥有便捷的立体交通网络。随着高铁动车惠州南站的通车,休闲、度假、养生栖居需求的持续升温,星河丹堤的区域价值将与粤港澳大湾区进程的建设同步提升。

家门口的高铁站——惠州南站。从家门口上车至深圳仅28分钟,至福田仅45分钟。
深圳地铁14号线正式动工,即将实现双城无缝对接。
南坪快速三期即将建成开通,一小时直通南山。
9月23日广深港高铁开通,惠州南站前往香港西九龙仅需68分钟。
家门口设深惠2线站台,一站直达龙岗。


匠心筑城,至美丹堤
九年时光沉淀,丹堤百万大城,社区规划5万人航母级社区,目前已超15000户业主居住,入住率超55%,历经10年的发展,星河丹堤已成为一座城,为居民提供便捷舒适的生活。


东侧临约7100亩亚公顶森林公园及约500万㎡风田水库,项目中心倾力打造7万㎡原生丹悦湖,其原生态纯天然的湖水与风田水库一脉相承。
- 丹悦湖

- 亚公顶森林公园

- 风田水库

百年华附 孜孜润泽
星河集团斥资6亿打造华南师范大学附属惠阳学校,秉承广州华附百年名校血统,严格按照省一级学校标准建设,设小学部、中学部、高中部,涵盖了3-18岁一站式名校教育。


学校开设超过72门学校实践活动课程,是素质教育的先进成果,也是惠阳华附特有的学校文化;学校开展体育节、艺术节、读书节、科技节“四大节日”,学生在这里得到德智体美全面发展。惠阳华附从小培养孩子的国际化视野,组织学生前往澳大利亚、英国游学,助力孩子更早拓宽视野,迈向精彩人生。
CCG商圈 尽享繁华
区域首创街区情景式旗舰商业COCO Garden商业已于2017年9月正式开业。


超2万㎡综合商业,业态涵盖超市、餐饮、影院、休闲娱乐等等。永辉超市、星河寰宇影院、探鱼、星趣童堡、森迪王国等品牌商家均已进驻,开业当天超20万人流,与周边万达、天虹等商业综合体共同构筑临深都市繁华商圈。
丹堤人文 温馨邻里
星河丹堤,不断优化升级现有配套,除了增加配套建设的投入,还致力于打造丹堤独有的社区文化。


星河丹堤为居民们建立起了各种圈子平台,目前已逐步设立起了义工社团、读书社团、微马社团、舞蹈社团、太极社团、英语社团、足球社团、篮球社团、瑜珈社团、旗袍社团、乒乓球社团、羽毛球社团、腰鼓社团、围棋社团共20个社团。业主们自主管理,依托各种配套,社团内经常组织球赛、训练、摄影展、棋艺培训、读书会、英语角等丰富的活动。
具体配套信息
01
小区内部配套
会所、无边际泳池、体育公园、开心农场、私家登山道、社区WE食堂、老年大学、社区服务中心、社康中心、Sun We书屋等
02
交通设施
星河丹堤内设有南站接驳巴士、龙岗CCP接驳巴士、166路电动公交、环湖路巴士的站台,为业主们往来深圳、市中心提供便捷交通。
03
中小学
华南师范大学附属惠阳学校
04
幼儿园
华附幼儿园、红黄蓝早教
05
综合商场
万达广场、开城天虹、大润发
06
医院
惠阳人民医院、惠阳区妇幼保健院
07
邮局
中国邮政
08
银行
建设银行、工商银行、农业银行 、招商银行、平安银行、广发银行

在售G4 玖誉组团基本信息
丹堤十年焕新之作——玖誉。100-170㎡双湖学府低密墅邸,将作为丹堤系TOP级产品,为惠湾人居版图再树标准!

玖誉,不仅依托丹堤已有的成熟生活配套,而且外邻6000㎡山体公园,可享受登高远眺的美景,更内享1000㎡景观泳池、4500㎡幼儿园……全优的品质、更迭的配套,为菁英人士更舒适的居住体验。

此外,玖誉还将配备首创轻中式立体园林,三重归家礼序,五大主题园林,七重禅意风景,石阶叠水&绿意小景点缀其中,令业主随时有诗境,处处有物华。






在售G4玖誉组团高层户型图
均价17000元/㎡










在售G4玖誉组团小高层洋房户型图
均价:17500~18500元/㎡


