1 简介
1.1 本说明书的有效性
本说明书适于下述电梯配置的KDL16驱动操作的调试、安全检查和测试。

1.2 文件范围
关于调试的必备条件、安全回路检查、设定非驱动功能、特殊功能,特别是关于工作安全,请参阅电梯级说明书。
• 系统级说明书
• AM-01.03.001, 在电梯施工和改造现场使用防坠落保护系统
• AM-01.03.002, 5步措施 –电梯作业时的电气安全
• AR-11.65.034, KDL16 备件手册
• AS-04.08.025, MX05, MX06 和 MX10制动器更换说明书
• AS-11.65.034, KDL16 驱动系统维修说明书
• 972483D01, KDL16 参数表
• 972485D01, KDL16 诊断代码
2 安全
警告:应始终使用经核准的有效设备测试以确认设备处于安全状态,即处于零能量状态。不要依赖LED或其它指示灯,应始终保证有充足的放电时间。检查测量工具以保证其能正常工作。
警告:含熔丝的面板后面有高压电,即使断电后依然存有较低的电击风险。使用万用表和长探头检查无能量状态。
2.1 一般工作安全
本说明书供多种电梯配置使用。您必须阅读各个电梯级安全手册内的安全说明书,以确保您的工作安全。
当在轿顶或其它有坠落危险的位置作业时,请格外小心。请参阅 AM-01.03.001,在电梯施工和改造现场使用防止坠落保护系统。
若对正确的工作方法存有任何疑问,请咨询主管人员。
2.2 公共安全
• 在任何时候作业区域均不得对公众开放。
• 保持作业区域以外的区域清洁。
• 将材料贮存在指定的存贮区域。不得放在层站或作业区域。
• 在居民楼内工作时,要按照协议的日常工作时间表工作,以避免不必要的干扰居民。
• 当向电梯井道内运输材料时,要使用附加的安全网罩或护栏将楼宇用户和运输路线和作业区域隔离。
• 按照要求放置警告和提示标识。
• 必要时使用栅栏。
2.3 安装方法安全
2.3.1 电气工作安全
请认真阅读相应电梯级手册的电气工作安全说明,确保正确关闭各个电梯及使用正确的锁闭方法。
在轿顶作业时,若作业区域有带电部件,应特别注意。
• 请参阅AM-01.03.002,Take 5,电梯作业时的电气安全。
• 检修门在不使用时应始终关闭。
• 在进行维护时,驱动系统的电气部件要与电力网络的电气部件分开。要使用主电源开关,该开关必须锁定在开启位置。
• 要确保高压部件不会对建筑物的其他使用者带来危险。当电源开启且保护装置被移除时,必须根据现场条件使用网罩或增加防护装置以确保安全。
• 当外部人员有进入作业区域或部件、工具有坠落到层站的危险时,应增加护栏或防护装置。
• 当作业区域附近存在无防护的带电部件时,应使用临时绝缘屏蔽或网罩对其加以防护。
AM-01.03.002,Take 5– 电梯作业时的电气安全
Take 5安全措施是为电梯的安装、维修、维护和改造而设计的。AM描述了为防止电击以及在电梯上作业时由于设备意外运动而对自己和他人造成的其它危险所需要采取的安全工作程序。请阅读并遵循相关说明书以及您当地的安全规范和规程的规定。
必须按指定顺序执行下述5步措施,除非有重要原因可以不这么做:
遵循以下5步措施以确保电气安全:
1. 完全切断电源。
2. 确保电源不会被再次接通。
3. 确认设备处于零能量状态。
4. 检查特殊环境下的接地要求。(本操作必须由合格人员与建筑物电气负责人员共同完成,建筑物电气负责人员必须确保在该条件下能够安全采取该项技术。
5. 为相邻带电部件提供护以保证安全。
2.3.2 危险和人员保护标识

为确保您的人身安全,应提供安全手套、防护服、带护踝的安全靴、安全头盔、安全眼镜、防尘面罩、护耳器和安全带。请按规定要求使用这些装备。

3 工具
安全检修需要下列工具:
y 绝缘电阻表(额定测试电压最小为 500VDC)
y 手持式转速计(额定速度最小为 2 m/s)
y 有高压保护的数字万用表(Fluke 179 或与之相当的产品),带长绝缘测试探头(最小长度为100 mm)
y 交流钳型表(真有效值)(额定电流最小为100A)
y 试重,是负载的125%
y 变速钻电动机
y 限速器绕轮
y 电池工具(KM859326)
y 门锁工具
y 普通手动工具
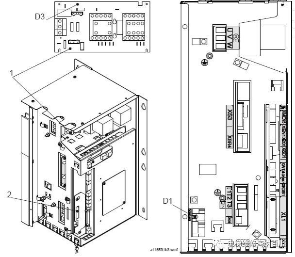
4 组件介绍
4.1 安装方法安全


4.2 如何使用实时显示功能
本章将向您总体介绍如何激活和使用实时显示功能。
实时显示功能是一项内置功能,用来测量/显示LOP-CB(375)上的各种驱动模块信号。
实时显示器选择RealTimeDisplay monitor selection(6_75)参数可以激活一项功能,例如该功能可以实现:实时观测电梯速度、轿厢运动方向、轿厢位置和电动机电流。

4.3 阅读详细故障代码
KDL16 驱动的故障子代码对故障进行了详细的说明。
故障子代码的编号分类如下:
• 1000-serie,电梯被锁定(驱动被禁止)。
• 2000-serie,电梯驱动被曳引机制动器停止。
• 3000-serie,提前显示警告(在设备故障停止前显示)。
• 6000-serie,诊断信息。本类别中的所有子代码都不表示故障,而是用于获取更多的信息。
4.3.1如何阅读故障子代码
本例描述如何阅读两个子代码118_6010 和 118_6011. 1。

5 驱动检修调试
5.1 调试施工期电源

注意!为延长电池的使用寿命,当电梯不开通/调试时(例如晚上)请不要将电池插销插到驱动装置上。
注意!电梯调试完后(施工期电源更换为最终电源),断开电池连接,并取出电池。安装X.G3-插头护盖。
5.2 前提和准备
请参阅电梯级安装手册以了解每台电梯在调试检修驱动前需具备的前提条件和应作的准备。
在调试开始之前,检查并确认已经完成了下述基本工作:
1)电梯井道安装。 2)曳引机安装。 3)轿厢安装。4)轿厢和层门安装。5)钢丝绳安装。6)轿厢和电梯井道电气化,包括信号装置。7)定位磁铁按照井道图精确安装。8)安装起重机必须从轿厢内移除。9)轿厢和对重已经调节平衡。10)电气板护罩已经装好。11)限速器已经最终安装就位。12)已进行了安全钳和限速操作检查。
警告:电缆须重新布线,请记住安全操作方法。
1. 检查并确认驱动电路电压 LED 显亮。
2. 用主开关 (220)关闭电源。
3. 在接触电缆之前至少要等待5分钟。
4. 检查并确认驱动电路电压LED不亮。
5. 尽可能用安全电压连接器测试。
5.21
检修线路

5.2.2 检查电动机电缆的接地和连接



5.3 设定参数
5.3.1设定 LCE 参数
请参阅LCE 用户界面菜单 813131。

5.3.2设定驱动参数
必须始终按照下表中的所有步骤执行。


5.4 检查电动机方向和编码器的极性
警告:当使用RDF驱动轿厢时轿顶不得有人。


5.5 使用 RDF 检查安全回路的运行
RDF 与缓冲器触点,限速器触点,极限开关 (51)和安全钳触点 (52)连接。
注意!必须使用RDF检查,而不是使用轿顶的检修驱动检查。

5.6 第一次在检修驱动模式下驱动电动机时的测试和检查


6 在额定速度下调试
调试前,请参阅电梯级安装手册。
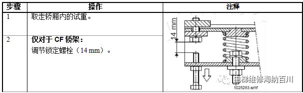
6.1 调节称重装置
根据称重装置的类型选择正确的程序(章节)调节称重装置。


6.1.2设定称重装置
注意!如果电梯在轿厢装饰准备就序之前投入使用,则当轿厢最终完成后必须重新设定称重装置。
请严格按照本工作顺序进行。如果忘记哪一步或给值错误,则必须完全重新设定LWD。

6.2 电梯井道设置
注意!若不设定 LWD,则无法实现再平层。

6.3 检查 ECB 的操作( 0 %负载) (可选)

6.4 复位 LCE 参数

7 微调
进行调节以提供最理想的乘座舒适感和最佳性能。请参阅电梯级安装说明书了解前提条件。
如果电梯结构或平衡发生了变化,则应重新进行微调。电梯在整个行程中成功驱动数次后即可进行微调。
7.1 检查轿厢和对重平衡(50 %负载)

7.2 最后检查轿厢和对重平衡(电气)(50 %负载)


7.3 对 LWD 操作进行微调(当只有 LWI 传感器时)


当完成设定后,各步骤可以单独复位。 例如,要设定新的空载点时,选择(6_74)参数值为0,其它点则仍保持设定值。
8 安全检修
建议按照指定的顺序进行检测,以避免进行不必要的装载和卸载。
8.1 标准和规程
本安全检修程序依据的是EN 81-1和KONE Corporation安全政策。
必须考虑到本说明书与当地安全规程之间可能存在的差异。
比较本说明书和随机文件,找出可能存在的差异,例如电路图方面的差异。
8.2 安全
所有的工作都必须认真规划,以避免出现安全隐患或损坏产品。
警告:在安全检修过程中,检查并确认轿厢或电梯井道内无人。
在安全检修过程中,用 LOP-CB切断层站呼梯,以保证检修不被中断和避免乘客被困在电梯中。
当不需要进入电梯时禁止进行层站呼梯和开门。
在进入轿顶之前,按轿顶停止按钮,在松开停止按钮之前将检修驱动装置切换为检修驱动。
8.3 前提条件
在开始安全检测之前,确保:各个层站放置了警示标识(电梯正在测试,请勿使用)。
●已完成安装与调谐。
●额定速度(包括安全回路检查)调试已完成。
●缓冲器高度已正确校准、固定,缓冲器内已注油(在适用情况下)。
●轿厢和对重上下方的安全控件正确。
●随行电缆的长度足以延伸到缓冲器上。
●电梯井道内和轿顶无不必要的物体。
●当不需要进入电梯时禁止进行层站呼梯和开门。
●制动器和控制回路正常。
●轿厢和对重已调整平衡。
●对重安全钳已安装(如有)。
●称量装置已调节完毕。
●已安装挡绳装置。
●LOP-CB板上的速度LED工作正常。
●必须在检修速度下进行轿厢安全钳测试。
●安装轿顶护栏并保证证安全。
●限速器安装位置稳固,并工作正常。
8.4 轿厢内 0 %负载时的安全测试
注意!在每个安全钳的标签后,有一个对 EN 81-1:1998 附录 D的简短参引。
警告:当您不需要开门时请勿开门。
8.4.1目视检查(0 %负载)(附录 D1.c 和 d,附录D2.a,b 和 c)



8.4.2测量主电源的绝缘电阻(0 %负载)(附录 D2.f)

8.4.3测量安全回路绝缘电阻(0% 负载)(附录 D2.f)

8.4.4速度测量 (0 %负载) (附录 D2.e 和 h3)

8.4.5报警装置( 0 % 负载)(附录 D2.m)

8.4.6轿厢和对重(如果适用)限速器测试( 0 % 负载)(附录 D2.i 和 n)
注意!如果轿厢和对重都有限速器,则对重限速器的动作速度要更高一些。


8.4.7空轿厢( 0 % 负载)曵引测试(附录 D2.h2)

8.4.8上极限开关检查(0 %负载)(51号)(附录 D2.g)

8.4.9电动机热敏元件电路测试(0%负载)

8.4.10对重缓冲器测试( 0 % 负载)(附录 D2.l)
注意!仅油压缓冲器需要测试。
警告:轿顶、轿厢内或电梯井道内不得有人。



8.4.11驱动时间管理测试( 0 % 负载)

8.5 轿厢内 50 %负载时的安全测试
8.5.1准备:给轿厢负载额定负载的50 % 。
8.5.2检查平衡(50 %负载)

8.5.3电流测量(50%负载)(附录 D2.e)

8.6 轿厢内 100%负载时的安全测试
8.6.1准备

8.6.2下极限开关的检查(100 %负载)(附录 D2.g)

8.6.3额定负载时的轿厢缓冲器测试(100 %负载)(附录 D2.l)
注意!仅油压缓冲器需要测试。


8.7 轿厢内 125 % 负载时的安全测试
8.7.1准备

8.7.2制动测试(125 % 负载)(附录 D2.d)和曵引检查(附录 D2.h1b)

8.7.3对125 %负载的轿厢进行安全钳测试(附录 D2.j)
警告:切断层站呼梯和禁止开门。确保测试时人员无法进入电梯井道或轿厢。
注意!如果有对重安全钳,系紧对重安全钳控制杆,以防止对重安全钳动作。



8.8 轿厢内 0 % 负载时的最后安全测试
8.8.1准备

8.8.2单侧电气制动测试( 0 %负载)
本测试旨在验证一个制动器即可支持轿厢。 EN81-1,附录D未对本测试作要求。
在进行本项测试之前,必须已完成电梯调试,保证电梯能无故障地正常运行,且必须对制动器松闸进行过调整。 本试验过程中,一个制动器抬起时电动机不会试图运行。
确保测试过程中人员无法进入电梯井道或轿厢。



8.8.3对重安全钳测试( 0 % 负载)(附录 D2.k)
在全速测试前,在检修驱动速度和轿厢空载条件下进行对重安全钳测试。
警告:切断层站呼梯和禁止开门。确保测试时人员无法进入电梯井道或轿厢。



8.8.4 NTS 测试( 0 % 负载)

8.8.5称重传感器的调整
检查称重传感器的调整。
8.8.6短路测试(0%负载)(附录D2.f)
备有一根交流1 A,5x20mm的备用陶瓷熔丝,以便用于本次测试。本测试是为了验证安全回路任意一点短路都会使安全回路熔丝烧毁。
