《建筑设计防火规范》GB 50016-2014(2018年修订版)

3.7 厂房的安全疏散
3.7.1每个防火分区或一个防火分区的每个楼层,其相邻2个安全出口最近边缘之间的水平距离不应小于5m。
3.7.2 厂房内每个防火分区或一个防火分区内的每个楼层,其安全出口的数量应经计算确定,且不应少于2个;当符合下列条件时,可设置1个安全出口:
- 1 甲类厂房,每层建筑面积不大于100m2。且同一时间的作业人数不超过5人;
- 2 乙类厂房,每层建筑面积不大于150m2,且同一时间的作业人数不超过10人;
- 3 丙类厂房,每层建筑面积不大于250m2,且同一时间的作业人数不超过20人;
- 4 丁、戊类厂房,每层建筑面积不大于400m2,且同一时间的作业人数不超过30人;
- 5 地下或半地下厂房(包括地下或半地下室),每层建筑面积不大于50m2,且同一时间的作业人数不超过15人。
3.7.3 地下或半地下厂房(包括地下或半地下室),当有多个防火分区相邻布置,并采用防火墙分隔时,每个防火分区可利用防火墙上通向相邻防火分区的甲级防火门作为第二安全出口,但每个防火分区必须至少有1个直通室外的独立安全出口。
3.7.4 厂房内任一点至最近安全出口的直线距离不应大于表3.7.4的规定。

表3.7.4 厂房内任一点至最近安全出口的直线距离(m)
3.7.5 厂房内疏散楼梯、走道、门的各自总净宽度,应根据疏散人数按每100人的最小疏散净宽度不小于表3.7.5的规定计算确定。但疏散楼梯的最小净宽度不宜小于1.10m,疏散走道的最小净宽度不宜小于1.40m,门的最小净宽度不宜小于0.90m。当每层疏散人数不相等时,疏散楼梯的总净宽度应分层计算,下层楼梯总净宽度应按该层及以上疏散人数最多一层的疏散人数计算。

首层外门的总净宽度应按该层及以上疏散人数最多一层的疏散人数计算,且该门的最小净宽度不应小于1.20m。
3.7.6 高层厂房和甲、乙、丙类多层厂房的疏散楼梯应采用封闭楼梯间或室外楼梯。建筑高度大于32m且任一层人数超过10人的厂房,应采用防烟楼梯间或室外楼梯。
3.8 仓库的安全疏散
3.8.1 每个防火分区或一个防火分区的每个楼层,其相邻2个安全出口最近边缘之间的水平距离不应小于5m。
3.8.2 每座仓库的安全出口不应少于2个,当一座仓库的占地面积不大于300m 2 时,可设置1个安全出口。仓库内每个防火分区通向疏散走道、楼梯或室外的出口不宜少于2个,当防火分区的建筑面积不大于100m 2 时,可设置1个出口。通向疏散走道或楼梯的门应为乙级防火门。
3.8.3 地下或半地下仓库(包括地下或半地下室)的安全出口不应少于2个;当建筑面积不大于100m 2 时,可设置1个安全出口。
地下或半地下仓库(包括地下或半地下室),当有多个防火分区相邻布置并采用防火墙分隔时,每个防火分区可利用防火墙上通向相邻防火分区的甲级防火门作为第二安全出口,但每个防火分区必须至少有1个直通室外的安全出口。
3.8.7 高层仓库的疏散楼梯应采用封闭楼梯间。
5.5 民用建筑安全疏散和避难
Ⅰ 一般要求
5.5.2 建筑内的安全出口和疏散门应分散布置,且建筑内每个防火分区或一个防火分区的每个楼层、每个住宅单元每层相邻两个安全出口以及每个房间相邻两个疏散门最近边缘之间的水平距离不应小于5m。
5.5.3 建筑的楼梯间宜通至屋面,通向屋面的门或窗应向外开启。
5.5.4 自动扶梯和电梯不应计作安全疏散设施。
5.5.5 除人员密集场所外,建筑面积不大于500m2、使用人数不超过30人且埋深不大于10m的地下或半地下建筑(室),当需要设置2个安全出口时,其中一个安全出口可利用直通室外的金属竖向梯。
除歌舞娱乐放映游艺场所外,防火分区建筑面积不大于200m2的地下或半地下设备间、防火分区建筑面积不大于50m2且经常停留人数不超过15人的其他地下或半地下建筑(室),可设置1个安全出口或1部疏散楼梯。
除本规范另有规定外,建筑面积不大于200m2的地下或半地下设备间、建筑面积不大于50m2且经常停留人数不超过15人的其他地下或半地下房间,可设置1个疏散门。
5.5.6 直通建筑内附设汽车库的电梯,应在汽车库部分设置电梯候梯厅,并应采用耐火极限不低于2.00h的防火隔墙和乙级防火门与汽车库分隔。
5.5.7 高层建筑直通室外的安全出口上方,应设置挑出宽度不小于1.0m的防护挑檐。
Ⅱ 公共建筑
5.5.8 公共建筑内每个防火分区或一个防火分区的每个楼层,其安全出口的数量应经计算确定,且不应少于2个。 设置1个安全出口或1部疏散楼梯的公共建筑应符合下列条件之一:
- 1 除托儿所、幼儿园外,建筑面积不大于200m 2 且人数不超过50人的单层公共建筑或多层公共建筑的首层;
- 2 除医疗建筑,老年人照料设施 建筑,托儿所、幼儿园的儿童用房,儿童游乐厅等儿童活动场所和歌舞娱乐放映游艺场所等外,符合表5.5.8规定的公共建筑。

表5.5.8 设置1部疏散楼梯的公共建筑
5.5.9 一、二级耐火等级公共建筑内的安全出口全部直通室外确有困难的防火分区,可利用通向相邻防火分区的甲级防火门作为安全出口,但应符合下列要求:
- 1 利用通向相邻防火分区的甲级防火门作为安全出口时,应采用防火墙与相邻防火分区进行分隔;
- 2 建筑面积大于1000m2的防火分区,直通室外的安全出口不应少于2个;建筑面积不大于1000m2的防火分区,直通室外的安全出口不应少于1个;
- 3 该防火分区通向相邻防火分区的疏散净宽度不应大于其按本规范第5.5.21条规定计算所需疏散总净宽度的30%,建筑各层直通室外的安全出口总净宽度不应小于按照本规范第5.5.21条规定计算所需疏散总净宽度。
5.5.10 高层公共建筑的疏散楼梯,当分散设置确有困难且从任一疏散门至最近疏散楼梯间入口的距离不大于10m时,可采用剪刀楼梯间,但应符合下列规定:
- 1 楼梯间应为防烟楼梯间;
- 2 梯段之间应设置耐火极限不低于1.00h的防火隔墙;
- 3 楼梯间的前室应分别设置。
5.5.11 设置不少于2部疏散楼梯的一、二级耐火等级多层公共建筑,如顶层局部升高,当高出部分的层数不超过2层、人数之和不超过50人且每层建筑面积不大于200m2时,高出部分可设置1部疏散楼梯,但至少应另外设置1个直通建筑主体上人平屋面的安全出口,且上人屋面应符合人员安全疏散的要求。
5.5.12 一类高层公共建筑和建筑高度大于32m的二类高层公共建筑,其疏散楼梯应采用防烟楼梯间。
裙房和建筑高度不大于32m的二类高层公共建筑,其疏散楼梯应采用封闭楼梯间。
注:当裙房与高层建筑主体之间设置防火墙时,裙房的疏散楼梯可按本规范有关单、多层建筑的要求确定。
5.5.13 下列多层公共建筑的疏散楼梯,除与敞开式外廊直接相连的楼梯间外,均应采用封闭楼梯间:
- 1 医疗建筑、旅馆、公寓 类似使用功能的建筑;
- 2 设置歌舞娱乐放映游艺场所的建筑;
- 3 商店、图书馆、展览建筑、会议中心及类似使用功能的建筑;
- 4 6层及以上的其他建筑。
5.5.13A 老年人照料设施的疏散楼梯或疏散楼梯间宜与敞开式外廊直接连通,不能与敞开式外廊直接连通的室内疏散楼梯应采用封闭楼梯间。建筑高度大于24m的老年人照料设施,其室内疏散楼梯应采用防烟楼梯间。
建筑高度大于32m的老年人照料设施,宜在32m以上部分增设能连通老年人居室和公共活动场所的连廊,各层连廊应直接与疏散楼梯、安全出口或室外避难场地连通。
5.5.14 公共建筑内的客、货电梯宜设置电梯候梯厅,不宜直接设置在营业厅、展览厅、多功能厅等场所内。老年人照料设施内的非消防电梯应采取防烟措施,当火灾情况下需用于辅助人员疏散时,该电梯及其设置 应符合本规范有关消防电梯及其设置的要求。
5.5.15 公共建筑内房间的疏散门数量应经计算确定且不应少于2个。除托儿所、幼儿园、老年人照料设施、医疗建筑、教学建筑内位于走道尽端的房间外,符合下列条件之一的房间可设置1个疏散门:
1 位于两个安全出口之间或袋形走道两侧的房间,对于托儿所、幼儿园、老年人 照料设施,建筑面积不大于50m 2 ;对于医疗建筑、教学建筑,建筑面积不大于75m 2 ;对于其他建筑或场所,建筑面积不大于120m 2 。
2 位于走道尽端的房间,建筑面积小于50m 2 且疏散门的净宽度不小于0.90m,或由房间内任一点至疏散门的直线距离不大于15m、建筑面积不大于200m 2 且疏散门的净宽度不小于1.40m。
3 歌舞娱乐放映游艺场所内建筑面积不大于50m 2 且经常停留人数不超过15人的厅、室。
5.5.16 剧场、电影院、礼堂和体育馆的观众厅或多功能厅,其疏散门的数量应经计算确定且不应少于2个,并应符合下列规定:
1 对于剧场、电影院、礼堂的观众厅或多功能厅,每个疏散门的平均疏散人数不应超过250人;当容纳人数超过2000人时,其超过2000人的部分,每个疏散门的平均疏散人数不应超过400人。
2 对于体育馆的观众厅,每个疏散门的平均疏散人数不宜超过400人~700人。
5.5.17 公共建筑的安全疏散距离应符合下列规定:
1 直通疏散走道的房间疏散门至最近安全出口的直线距离不应大于表5.5.17的规定。

表5.5.17 直通疏散走道的房间疏散门至最近安全出口的直线距离(m)
注:
- 1 建筑内开向敞开式外廊的房间疏散门至最近安全出口的直线距离可按本表的规定增加5m。
- 2 直通疏散走道的房间疏散门至最近敞开楼梯间的直线距离,当房间位于两个楼梯间之间时,应按本表的规定减少5m;当房间位于袋形走道两侧或尽端时,应按本表的规定减少2m。
- 3 建筑物内全部设置自动喷水灭火系统时,其安全疏散距离可按本表的规定增加25%。
2 楼梯间应在首层直通室外,确有困难时,可在首层采用扩大的封闭楼梯间或防烟楼梯间前室。当层数不超过4层且未采用扩大的封闭楼梯间或防烟楼梯间前室时,可将直通室外的门设置在离楼梯间不大于15m处。
3 房间内任一点至房间直通疏散走道的疏散门的直线距离,不应大于表5.5.17规定的袋形走道两侧或尽端的疏散门至最近安全出口的直线距离。
4 一、二级耐火等级建筑内疏散门或安全出口不少于2个的观众厅、展览厅、多功能厅、餐厅、营业厅等,其室内任一点至最近疏散门或安全出口的直线距离不应大于30m;当疏散门不能直通室外地面或疏散楼梯间时,应采用长度不大于10m的疏散走道通至最近的安全出口。当该场所设置自动喷水灭火系统时,室内任一点至最近安全出口的安全疏散距离可分别增加25%。
5.5.18 除本规范另有规定外,公共建筑内疏散门和安全出口的净宽度不应小于0.90m,疏散走道和疏散楼梯的净宽度不应小于1.10m。
高层公共建筑内楼梯间的首层疏散门、首层疏散外门、 疏散走道和疏散楼梯的最小净宽度应符合表5.5.18的规定。

高层公共建筑内楼梯间的首层疏散门、首层疏散外门、 疏散走道和疏散楼梯的最小净宽度(m)
5.5.19 人员密集的公共场所、观众厅的疏散门不应设置门槛,其净宽度不应小于1.40m,且紧靠门口内外各1.40m范围内不应设置踏步。
人员密集的公共场所的室外疏散通道的净宽度不应小于3.00m,并应直接通向宽敞地带。
5.5.20 剧场、电影院、礼堂、体育馆等场所的疏散走道、疏散楼梯、疏散门、安全出口的各自总净宽度,应符合下列规定:
1 观众厅内疏散走道的净宽度应按每100人不小于0.60m计算,且不应小于1.00m;边走道的净宽度不宜小于0.80m。
布置疏散走道时,横走道之间的座位排数不宜超过20排;纵走道之间的座位数:剧场、电影院、礼堂等,每排不宜超过22个;体育馆,每排不宜超过26个;前后排座椅的排距不小于0.90m时,可增加1.0倍,但不得超过50个;仅一侧有纵走道时,座位数应减少一半。
2 剧场、电影院、礼堂等场所供观众疏散的所有内门、外门、楼梯和走道的各自总净宽度,应根据疏散人数按每100人的最小疏散净宽度不小于表5.5.20-1的规定计算确定。

表5.5.20-1 剧场、电影院、礼堂等场所每100人所需最小疏散净宽度(m/百人)
3 体育馆供观众疏散的所有内门、外门、楼梯和走道的各自总净宽度,应根据疏散人数按每100人的最小疏散净宽度不小于表5.5.20-2的规定计算确定。

表5.5.20-2 体育馆每100人所需最小疏散净宽度(m/百人)
注:本表中对应较大座位数范围按规定计算的疏散总净宽度,不应小于对应相邻较小座位数范围按其最多座位数计算的疏散总净宽度。对于观众厅座位数少于3000个的体育馆,计算供观众疏散的所有内门、外门、楼梯和走道的各自总净宽度时,每100人的最小疏散净宽度不应小于表5.5.20-1的规定。
4 有等场需要的入场门不应作为观众厅的疏散门。
5.5.21 除剧场、电影院、礼堂、体育馆外的其他公共建筑,其房间疏散门、安全出口、疏散走道和疏散楼梯的各自总净宽度,应符合下列规定:
- 1 每层的房间疏散门、安全出口、疏散走道和疏散楼梯的各自总净宽度,应根据疏散人数按每100人的最小疏散净宽度不小于表5.5.21-1的规定计算确定。当每层疏散人数不等时,疏散楼梯的总净宽度可分层计算,地上建筑内下层楼梯的总净宽度应按该层及以上疏散人数最多一层的人数计算;地下建筑内上层楼梯的总净宽度应按该层及以下疏散人数最多一层的人数计算。

每层的房间疏散门、安全出口、疏散走道和疏散楼梯的每100人最小疏散净宽度(m/百人)
- 2 地下或半地下人员密集的厅、室和歌舞娱乐放映游艺场所,其房间疏散门、安全出口、疏散走道和疏散楼梯的各自总净宽度,应根据疏散人数按每100人不小于1.00m计算确定。
- 3 首层外门的总净宽度应按该建筑疏散人数最多一层的人数计算确定,不供其他楼层人员疏散的外门,可按本层的疏散人数计算确定。
- 4 歌舞娱乐放映游艺场所中录像厅的疏散人数,应根据厅、室的建筑面积按不小于1.0人/m 2 计算;其他歌舞娱乐放映游艺场所的疏散人数,应根据厅、室的建筑面积按不小于0.5人/m 2 计算。
- 5 有固定座位的场所,其疏散人数可按实际座位数的1.1倍计算。
- 6 展览厅的疏散人数应根据展览厅的建筑面积和人员密度计算,展览厅内的人员密度不宜小于0.75人/m2。
- 7 商店的疏散人数应按每层营业厅的建筑面积乘以表5.5.21-2规定的人员密度计算。对于建材商店、家具和灯饰展示建筑,其人员密度可按表5.5.21-2规定值的30%确定。

5.5.22 人员密集的公共建筑不宜在窗口、阳台等部位设置封闭的金属栅栏,确需设置时,应能从内部易于开启;窗口、阳台等部位宜根据其高度设置适用的辅助疏散逃生设施。
5.5.23 建筑高度大于100m的公共建筑,应设置避难层(间)。避难层(间)应符合下列规定:
- 1 第一个避难层(间)的楼地面至灭火救援场地地面的高度不应大于50m,两个避难层(间)之间的高度不宜大于50m。
- 2 通向避难层(间)的疏散楼梯应在避难层分隔、同层错位或上下层断开。
- 3 避难层(间)的净面积应能满足设计避难人数避难的要求,并宜按5.0人/m 2 计算。
- 4 避难层可兼作设备层。设备管道宜集中布置,其中的易燃、可燃液体或气体管道应集中布置,设备管道区应采用耐火极限不低于3.00h的防火隔墙与避难区分隔。管道井和设备间应采用耐火极限不低于2.00h的防火隔墙与避难区分隔,管道井和设备间的门不应直接开向避难区;确需直接开向避难区时,与避难层区出入口的距离不应小于5m,且应采用甲级防火门。
- 避难间内不应设置易燃、可燃液体或气体管道,不应开设除外窗、疏散门之外的其他开口。
- 5 避难层应设置消防电梯出口。
- 6 应设置消火栓和消防软管卷盘。
- 7 应设置消防专线电话和应急广播。
- 8 在避难层(间)进入楼梯间的入口处和疏散楼梯通向避难层(间)的出口处,应设置明显的指示标志。
- 9 应设置直接对外的可开启窗口或独立的机械防烟设施,外窗应采用乙级防火窗。
5.5.24 高层病房楼应在二层及以上的病房楼层和洁净手术部设置避难间。避难间应符合下列规定:
- 1 避难间服务的护理单元不应超过2个,其净面积应按每个护理单元不小于25.0m 2 确定。
- 2 避难间兼作其他用途时,应保证人员的避难安全,且不得减少可供避难的净面积。
- 3 应靠近楼梯间,并应采用耐火极限不低于2.00h的防火隔墙和甲级防火门与其他部位分隔。
- 4 应设置消防专线电话和消防应急广播。
- 5 避难间的入口处应设置明显的指示标志。
- 6 应设置直接对外的可开启窗口或独立的机械防烟设施,外窗应采用乙级防火窗。
5.5.24A 3层及3层以上总建筑面积大于3000m 2 (包括设置在其他建筑内三层及以上楼层)的老年人照料设施,应在二层及以上各老年人照料设施部分的每座疏散楼梯间的相邻部位设置1间避难间;当老年人照料设施设置与疏散楼梯或安全出口直接连通的开敞式外廊、与疏散走道直接连通且符合人员避难要求的室外平台等时,可不设置避难间。避难间内可供避难的净面积不应小于12m 2 ,避难间可利用疏散楼梯间的前室或消防电梯的前室,其他要求应符合本规范第5.5.24条的规定。
供失能老年人使用且层数大于2层的老年人照料设施,应按核定使用人数配备简易防毒面具。
Ⅲ 住宅建筑
5.5.25 住宅建筑安全出口的设置应符合下列规定:
- 1 建筑高度不大于27m的建筑,当每个单元任一层的建筑面积大于650m 2 ,或任一户门至最近安全出口的距离大于15m时,每个单元每层的安全出口不应少于2个;
- 2 建筑高度大于27m、不大于54m的建筑,当每个单元任一层的建筑面积大于650m 2 ,或任一户门至最近安全出口的距离大于10m时,每个单元每层的安全出口不应少于2个;
- 3 建筑高度大于54m的建筑,每个单元每层的安全出口不应少于2个。
5.5.26 建筑高度大于27m,但不大于54m的住宅建筑,每个单元设置一座疏散楼梯时,疏散楼梯应通至屋面,且单元之间的疏散楼梯应能通过屋面连通,户门应采用乙级防火门。当不能通至屋面或不能通过屋面连通时,应设置2个安全出口。
5.5.27 住宅建筑的疏散楼梯设置应符合下列规定:
1 建筑高度不大于21m的住宅建筑可采用敞开楼梯间;与电梯井相邻布置的疏散楼梯应采用封闭楼梯间,当户门采用乙级防火门时,仍可采用敞开楼梯间。
2 建筑高度大于21m、不大于33m的住宅建筑应采用封闭楼梯间;当户门采用乙级防火门时,可采用敞开楼梯间。
3 建筑高度大于33m的住宅建筑应采用防烟楼梯间。户门不宜直接开向前室,确有困难时,每层开向同一前室的户门不应大于3樘且应采用乙级防火门。
5.5.28 住宅单元的疏散楼梯,当分散设置确有困难且任一户门至最近疏散楼梯间入口的距离不大于10m时,可采用剪刀楼梯间,但应符合下列规定:
- 1 应采用防烟楼梯间。
- 2 梯段之间应设置耐火极限不低于1.00h的防火隔墙。
- 3 楼梯间的前室不宜共用;共用时,前室的使用面积不应小于6.0m2。
- 4 楼梯间的前室或共用前室不宜与消防电梯的前室合用;楼梯间的共用前室与消防电梯的前室合用时,合用前室的使用面积不应小于12.0m2,且短边不应小于2.4m。
5.5.29 住宅建筑的安全疏散距离应符合下列规定:
1 直通疏散走道的户门至最近安全出口的直线距离不应大于表5.5.29的规定。

注:
- 1 开向敞开式外廊的户门至最近安全出口的最大直线距离可按本表的规定增加5m。
- 2 直通疏散走道的户门至最近敞开楼梯间的直线距离,当户门位于两个楼梯间之间时,应按本表的规定减少5m;当户门位于袋形走道两侧或尽端时,应按本表的规定减少2m。
- 3 住宅建筑内全部设置自动喷水灭火系统时,其安全疏散距离可按本表的规定增加25%。
- 4 跃廊式住宅的户门至最近安全出口的距离,应从户门算起,小楼梯的一段距离可按其水平投影长度的1.50倍计算。
2 楼梯间应在首层直通室外,或在首层采用扩大的封闭楼梯间或防烟楼梯间前室。层数不超过4层时,可将直通室外的门设置在离楼梯间不大于15m处。
3 户内任一点至直通疏散走道的户门的直线距离不应大于表5.5.29规定的袋形走道两侧或尽端的疏散门至最近安全出口的最大直线距离。
注:跃层式住宅,户内楼梯的距离可按其梯段水平投影长度的1.50倍计算。
5.5.30 住宅建筑的户门、安全出口、疏散走道和疏散楼梯的各自总净宽度应经计算确定,且户门和安全出口的净宽度不应小于0.90m,疏散走道、疏散楼梯和首层疏散外门的净宽度不应小于1.10m。建筑高度不大于18m的住宅中一边设置栏杆的疏散楼梯,其净宽度不应小于1.0m。
5.5.31 建筑高度大于100m的住宅建筑应设置避难层,避难层的设置应符合本规范第5.5.23条有关避难层的要求。
5.5.32 建筑高度大于54m的住宅建筑,每户应有一间房间符合下列规定:
1 应靠外墙设置,并应设置可开启外窗;
2 内、外墙体的耐火极限不应低于1.00h,该房间的门宜采用乙级防火门,外窗的耐火完整性不宜低于1.00h。

6.4 疏散楼梯间和疏散楼梯等
6.4.1 疏散楼梯间应符合下列规定:
- 1 楼梯间应能天然采光和自然通风,并宜靠外墙设置。靠外墙设置时,楼梯间、前室及合用前室外墙上的窗口与两侧门、窗、洞口最近边缘的水平距离不应小于1.0m。
- 2 楼梯间内不应设置烧水间、可燃材料储藏室、垃圾道。
- 3 楼梯间内不应有影响疏散的凸出物或其他障碍物。
- 4 封闭楼梯间、防烟楼梯间及其前室,不应设置卷帘。
- 5 楼梯间内不应设置甲、乙、丙类液体管道。
- 6 封闭楼梯间、防烟楼梯间及其前室内禁止穿过或设置可燃气体管道。敞开楼梯间内不应设置可燃气体管道,当住宅建筑的敞开楼梯间内确需设置可燃气体管道和可燃气体计量表时,应采用金属管和设置切断气源的阀门。






6.4.2 封闭楼梯间除应符合本规范第6.4.1条的规定外,尚应符合下列规定:
- 1 不能自然通风或自然通风不能满足要求时,应设置机械加压送风系统或采用防烟楼梯间。
- 2 除楼梯间的出入口和外窗外,楼梯间的墙上不应开设其他门、窗、洞口。
- 3 高层建筑、人员密集的公共建筑、人员密集的多层丙类厂房、甲、乙类厂房,其封闭楼梯间的门应采用乙级防火门,并应向疏散方向开启;其他建筑,可采用双向弹簧门。
- 4 楼梯间的首层可将走道和门厅等包括在楼梯间内形成扩大的封闭楼梯间,但应采用乙级防火门等与其他走道和房间分隔。
6.4.3 防烟楼梯间除应符合本规范第6.4.1条的规定外,尚应符合下列规定:
- 1 应设置防烟设施。
- 2 前室可与消防电梯间前室合用。
- 3 前室的使用面积:公共建筑、高层厂房(仓库),不应小于6.0m 2 ;住宅建筑,不应小于4.5m 2 。
- 与消防电梯间前室合用时,合用前室的使用面积:公共建筑、高层厂房(仓库),不应小于10.0m 2 ;住宅建筑,不应小于6.0m 2 。
- 4 疏散走道通向前室以及前室通向楼梯间的门应采用乙级防火门。
- 5 除住宅建筑的楼梯间前室外,防烟楼梯间和前室内的墙上不应开设除疏散门和送风口外的其他门、窗、洞口。
- 6 楼梯间的首层可将走道和门厅等包括在楼梯间前室内形成扩大的前室,但应采用乙级防火门等与其他走道和房间分隔。

6.4.4 除通向避难层错位的疏散楼梯外,建筑内的疏散楼梯间在各层的平面位置不应改变。
除住宅建筑套内的自用楼梯外,地下或半地下建筑(室)的疏散楼梯间,应符合下列规定:
- 1 室内地面与室外出入口地坪高差大于10m或3层及以上的地下、半地下建筑(室),其疏散楼梯应采用防烟楼梯间;其他地下或半地下建筑(室),其疏散楼梯应采用封闭楼梯间。
- 2 应在首层采用耐火极限不低于2.00h的防火隔墙与其他部位分隔并应直通室外,确需在隔墙上开门时,应采用乙级防火门。
- 3 建筑的地下或半地下部分与地上部分不应共用楼梯间,确需共用楼梯间时,应在首层采用耐火极限不低于2.00h的防火隔墙和乙级防火门将地下或半地下部分与地上部分的连通部位完全分隔,并应设置明显的标志。
6.4.5 室外疏散楼梯应符合下列规定:
- 1 栏杆扶手的高度不应小于1.10m,楼梯的净宽度不应小于0.90m。
- 2 倾斜角度不应大于45°。
- 3 梯段和平台均应采用不燃材料制作。平台的耐火极限不应低于1.00h,梯段的耐火极限不应低于0.25h。
- 4 通向室外楼梯的门应采用乙级防火门,并应向外开启。
- 5 除疏散门外,楼梯周围2m内的墙面上不应设置门、窗、洞口。疏散门不应正对梯段。

6.4.6 用作丁、戊类厂房内第二安全出口的楼梯可采用金属梯,但其净宽度不应小于0.90m,倾斜角度不应大于45°。
丁、戊类高层厂房,当每层工作平台上的人数不超过2人且各层工作平台上同时工作的人数总和不超过10人时,其疏散楼梯可采用敞开楼梯或利用净宽度不小于0.90m、倾斜角度不大于60°的金属梯。
6.4.7 疏散用楼梯和疏散通道上的阶梯不宜采用螺旋楼梯和扇形踏步;确需采用时,踏步上、下两级所形成的平面角度不应大于10°,且每级离扶手250mm处的踏步深度不应小于220mm。

6.4.8 建筑内的公共疏散楼梯,其两梯段及扶手间的水平净距不宜小于150mm。

6.4.9 高度大于10m的三级耐火等级建筑应设置通至屋顶的室外消防梯。室外消防梯不应面对老虎窗,宽度不应小于0.6m,且宜从离地面3.0m高处设置。
6.4.10 疏散走道在防火分区处应设置常开甲级防火门。
6.4.11 建筑内的疏散门应符合下列规定:
- 1 民用建筑和厂房的疏散门,应采用向疏散方向开启的平开门,不应采用推拉门、卷帘门、吊门、转门和折叠门。除甲、乙类生产车间外,人数不超过60人且每樘门的平均疏散人数不超过30人的房间,其疏散门的开启方向不限。
- 2 仓库的疏散门应采用向疏散方向开启的平开门,但丙、丁、戊类仓库首层靠墙的外侧可采用推拉门或卷帘门。
- 3 开向疏散楼梯或疏散楼梯间的门,当其完全开启时,不应减少楼梯平台的有效宽度。
- 4 人员密集场所内平时需要控制人员随意出入的疏散门和设置门禁系统的住宅、宿舍、公寓建筑的外门,应保证火灾时不需使用钥匙等任何工具即能从内部易于打开,并应在显著位置设置具有使用提示的标识。
6.4.12 用于防火分隔的下沉式广场等室外开敞空间,应符合下列规定:
- 1 分隔后的不同区域通向下沉式广场等室外开敞空间的开口最近边缘之间的水平距离不应小于13m。室外开敞空间除用于人员疏散外不得用于其他商业或可能导致火灾蔓延的用途,其中用于疏散的净面积不应小于169m2。
- 2 下沉式广场等室外开敞空间内应设置不少于1部直通地面的疏散楼梯。当连接下沉广场的防火分区需利用下沉广场进行疏散时,疏散楼梯的总净宽度不应小于任一防火分区通向室外开敞空间的设计疏散总净宽度。
- 3 确需设置防风雨篷时,防风雨篷不应完全封闭,四周开口部位应均匀布置,开口的面积不应小于该空间地面面积的25%,开口高度不应小于1.0m;开口设置百叶时,百叶的有效排烟面积可按百叶通风口面积的60%计算。
6.4.13 防火隔间的设置应符合下列规定:
- 1 防火隔间的建筑面积不应小于6.0m2;
- 2 防火隔间的门应采用甲级防火门;
- 3 不同防火分区通向防火隔间的门不应计入安全出口,门的最小间距不应小于4m;
- 4 防火隔间内部装修材料的燃烧性能应为*级A**;
- 5 不应用于除人员通行外的其他用途。
6.4.14 避难走道的设置应符合下列规定:
- 1 避难走道防火隔墙的耐火极限不应低于3.00h,楼板的耐火极限不应低于1.50h。
- 2 避难走道直通地面的出口不应少于2个,并应设置在不同方向;当避难走道仅与一个防火分区相通且该防火分区至少有1个直通室外的安全出口时,可设置1个直通地面的出口。任一防火分区通向避难走道的门至该避难走道最近直通地面的出口的距离不应大于60m。
- 3 避难走道的净宽度不应小于任一防火分区通向该避难走道的设计疏散总净宽度。
- 4 避难走道内部装修材料的燃烧性能应为*级A**。
- 5 防火分区至避难走道入口处应设置防烟前室,前室的使用面积不应小于6.0m2,开向前室的门应采用甲级防火门,前室开向避难走道的门应采用乙级防火门。
- 6 避难走道内应设置消火栓、消防应急照明、应急广播和消防专线电话。

《民用建筑设计统一标准》GB 50352-2019 实施日期:2019.10.01
6.8 楼 梯
6.8.3 梯段净宽除应符合现行国家标准《建筑设计防火规范》GB 50016及国家现行相关专用建筑设计标准的规定外,供日常主要交通用的楼梯的梯段净宽应根据建筑物使用特征,按每股人流宽度为0.55m+(0~0.15)m的人流股数确定,并不应少于两股人流。(0~0.15)m为人流在行进中人体的摆幅,公共建筑人流众多的场所应取上限值。

图6 楼梯梯段净宽
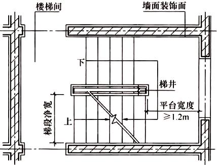
6.8.4 当梯段改变方向时,扶手转向端处的平台最小宽度不应小于梯段净宽,并不得小于1.2m。当有搬运大型物件需要时,应适量加宽。直跑楼梯的中间平台宽度不应小于0.9m。

图7 楼梯梯段、平台、梯井
6.8.5 每个梯段的踏步级数不应少于3级,且不应超过18级。
6.8.6 楼梯平台上部及下部过道处的净高不应小于2.0m,梯段净高不应小于2.2m。
注:梯段净高为自踏步前缘(包括每个梯段最低和最高一级踏步前缘线以外0.3m范围内)量至上方突出物下缘间的垂直高度。

图9梯段净高
6.8.7 楼梯应至少于一侧设扶手,梯段净宽达三股人流时应两侧设扶手,达四股人流时宜加设中间扶手。
6.8.8 室内楼梯扶手高度自踏步前缘线量起不宜小于0.9m。楼梯水平栏杆或栏板长度大于0.5m时,其高度不应小于1.05m。
6.8.9 托儿所、幼儿园、中小学校及其他少年儿童专用活动场所,当楼梯井净宽大于0.2m(少儿胸背厚度)时,必须采取防止少年儿童坠落的措施。杆件或花饰的镂空处净距不得大于0.11m,楼梯扶手上应加装防止少年儿童溜滑的设施。
6.8.10 楼梯踏步的宽度和高度应符合表6.8.10的规定。

表6.8.10 楼梯踏步最小宽度和最大高度(m)
注:螺旋楼梯和扇形踏步离内侧扶手中心0.250m处的踏步宽度不应小于0.220m。

予人玫瑰,手有余香……如认可本文内容,请将其转发给更多需要的人士!