【作品信息】
项目面积:135㎡
户型结构:三室两厅二卫
设计风格:简欧
项目地址:大溪地
设计施工:安徽华然装饰集团

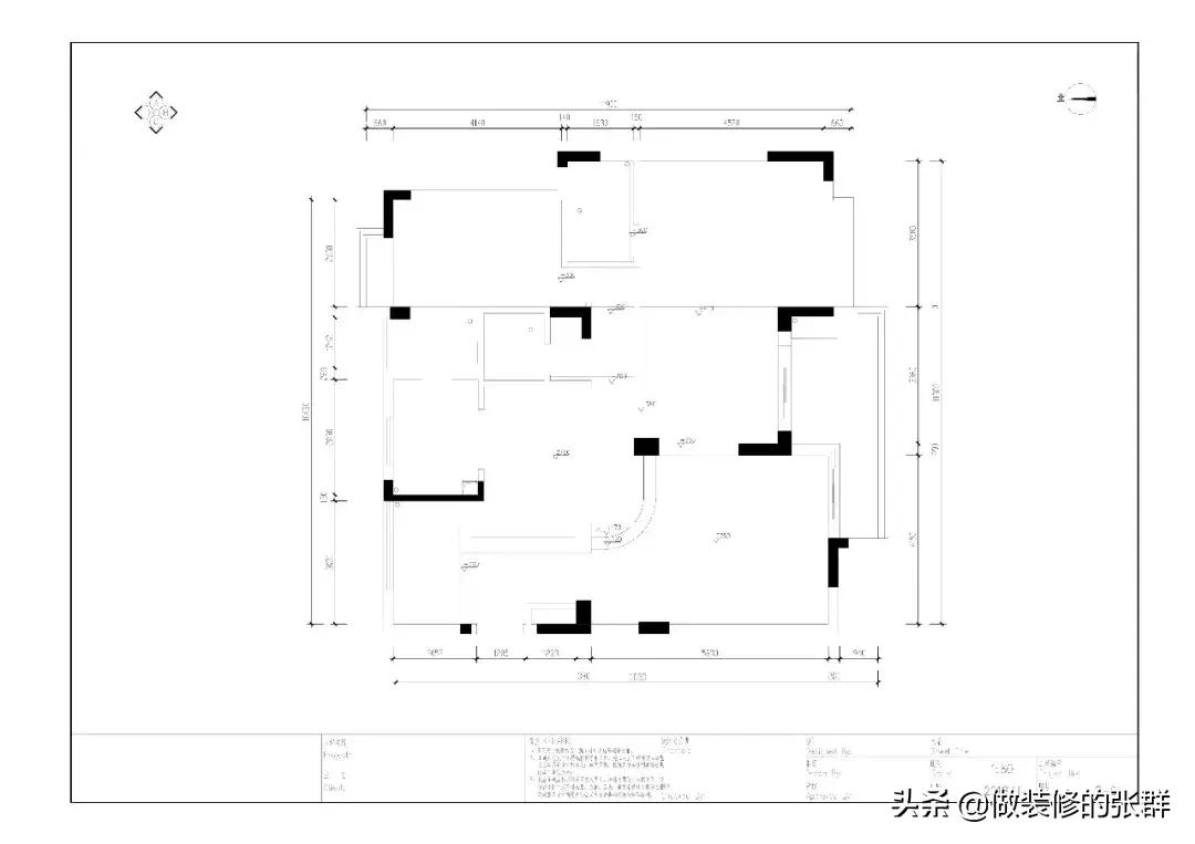
原始户型图

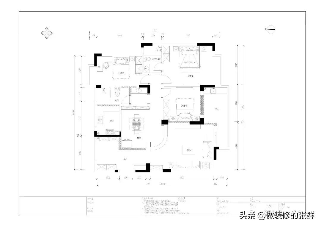
平面布局图
春日暖阳折射进室内每个角落,全心全意感受生活的美,找到一个舒适的生活方式,有烟火有欢笑,万般甚好。


本案的原始入户正对门是一面大玻璃墙,通透有余但缺少设计感和玄关的氛围,因此设计师在入户设计中,将两边玻璃保留,配以白色边框和透明玻璃格,光线折射室内,同时入户与餐厅间倚窗相望,彼此独立又相互融合。设计师充分利用玄关的空间,储物空间的设计将收纳做到最大化。



方正型的客厅,顶面的水晶灯与大理石拼花地砖相得益彰,细节处理上采用凹凸造型的墙面、暖色砖的斜铺,空间视觉上明亮通透。精致的家居陈设,让室内充斥着温馨与优雅的感觉,亮色元素的配搭,使空间更加活跃。



拾阶而上,一盏剔透的水晶灯,一组大大的酒柜,墙面上一幅挂画不仅装饰空间,更让就餐充满仪式感。


延续客厅的整体风格,卧室中浅紫色的床品,尽显奢华与梦幻。阳关透过飘窗散落屋中,满目春色,心旷神怡。


儿童房依然以蓝色调为主,细蓝条纹的壁纸配以足球腰线,活泼卡通的床品,充满童真童趣,床边的光线让阅读成为孩子最喜欢的时光。