2008年,枫丹白露当地政府发起了一项设计竞赛,旨在重新开发位于枫丹白露森林边缘的Faisanderie运动场。设计的主要内容是进行景观优化,并对两个主要运动场地之间的看台进行重建。新看台的长度为75米,被设置在两个种满绿植的丘陵之间。看台座位的上方设有宽阔的遮阳篷,成为场地中唯一一个显著抬升于地面的结构。
In 2008, the Fontainebleau local authority launched a competition to redevelop the Faisanderie sports grounds, situated on the edge of the forest of Fontainebleau. This redevelopment includes landscaping and the rebuilding of the stands that existed between the two main sports grounds. The new grandstand, 75m long, would be inserted between two planted mounds. The awning that shelters the seating would be the only structure to rise from the site.
▼项目概览,overall view ©Arnaud Schelstraete

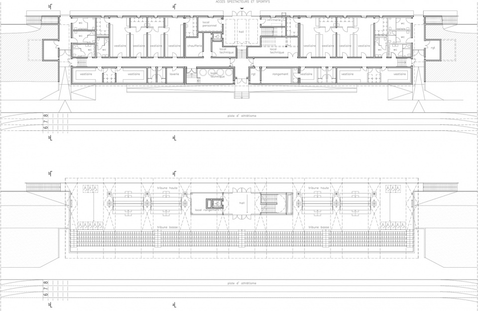
看台的基座由5排阶梯式座位构成,朝向主要的足球场,位于后方的平台则可以俯瞰到另外一个运动场。座位和平台下方的空间被用作更衣室、洗手间和储物空间。该基座采用了钢筋混凝土结构,外部未作任何装饰,内部覆盖以漆面或衬板。地下空间由于包含制热和湿空间,因而进行了特殊处理,以确保水密性和隔热性,同时还需要考虑上方观众的重量。平台的中央设有一个局部以玻璃围合的方形体量,用于容纳楼梯和电梯厅。
▼剖面图,sections ©Barthélémy Griño Architectes

The base of the grandstand is made up of five lines of terraced seating facing the main football pitch, and a rear terrace that looks out over the second sports ground. Beneath the seating and terrace, the ground floor level incorporates changing rooms, washrooms and storage. This base is made of reinforced concrete left untreated to the exterior, painted or lined inside. The presence of heated and wet rooms underneath the terraced seating required particular solutions to ensure water-tightness and thermal insulation, taking into consideration the weight of spectators overhead. At the centre of the terrace, a partially glazed pavilion accommodates the stairs and lift lobby.
▼5排阶梯式座位朝向主要的足球场, five lines of terraced seating face the main football pitch ©Arnaud Schelstraete


▼座位和平台下方的空间被用作更衣室、洗手间和储物空间,beneath the seating and terrace, the ground floor level incorporates changing rooms, washrooms and storage ©Arnaud Schelstraete

遮阳顶篷覆盖了整个平台和座位区。折线形的屋顶呈现出向山谷汇聚的姿态,中央有一条全长的水槽。树状的立柱以17米为间距分布,构成了屋顶的支撑系统。每组树状柱包含3个分柱,在高度超过3米的位置与漆面钢管形成双向铰接。每组柱子都形成了三角形的结构并为屋顶提供了6个支撑点,从而保证了足够的横向强度。
An awning covers the whole of the terrace and the terraced seating. The roof has two slopes converging toward a valley with a central gutter along its entire length. The roof is supported by a system of spreading ‘tree-like’ columns placed every 17m. These comprise three posts, which, above a height of 3m, branch into painted steel tubular bi-articulated links. Each post system is triangulated to give transversal strength, and each gives six points of support to the roof.
▼树状立柱构成了屋顶的支撑系统,the roof is supported by a system of spreading ‘tree-like’ columns ©Arnaud Schelstraete

▼三角形结构保证了足够的横向强度,each post system is triangulated to give transversal strength ©Arnaud Schelstraete

屋顶结构采用了道格拉斯冷杉木,由成对分布且具有不同截面的胶合梁构成,通过13根桁条实现连接。纵向的支撑由中央的长方形体量提供。顶部表面覆盖以波纹状的聚碳酸酯板。
The roof’s structure is in Douglas fir. It is composed of pairs of glulam beams of variable section, linked by thirteen lines of purlins. Longitudinal bracing is provided by the central pavilion. The awning is covered by sheets of corrugated poly- carbonate.
▼平台后方视角,view from the rear side of the terrace ©Arnaud Schelstraete

▼纵向的支撑由中央的长方形体量提供,longitudinal bracing is provided by the central pavilion ©Arnaud Schelstraete

遮阳蓬的下表面是由厚实的道格拉斯冷杉木制成的细密网络,可以过滤阳光的直射,并通过光影的变化和木材的质感共同强调出屋顶的轮廓。
Beneath this cover is a screen made of a dense grid of thick planks of Douglas fir. The screen filters direct sunlight and creates a play of light and reflections on the wood, highlighting the roof line.
▼顶篷和看台细节,roof structure and terraced seating ©Arnaud Schelstraete

▼总平面图,Plan masse ©Barthélémy Griño Architectes

▼项目平面图,Plans ©Barthélémy Griño Architectes

▼屋顶结构细部,Roof detail ©Barthélémy Griño Architectes
