“
It has been 7 years in the making and now we’re finally getting close to the finish line for what has become the most expensive condo development in the United States.
—————
花费了7年时间,现在我们终于迎来了美国最昂贵豪宅开发的竣工。”

世界上最高最私人的俱乐部
就在2020即将落成的世界上最高豪宅
Central Park Tower之上!


大楼竣工当日
激动人心的盛况!
建筑封顶当天发布会视频

两位建筑师在发布会现场



Central Park Tower
高472米,共131层,历时10年打造
“我们的建筑代表了顶层的生活,还有什么比100层的中央公园俱乐部更好的庆祝方式呢? ” Extell 发展公司高级副总裁 Joaquin f. Stearns 说。
“从世界顶级米其林星级厨师的漂流主厨,到向各个方向绵延数十英里的风景,这个会所体现了世界最高住宅楼的优越感。”
01
这空中俱乐部
使命是创造最终的生活方式体验
这是世界上最高的空中俱乐部(Central Park Club)
约4600㎡奢华设施,面积相当于学校的运动场
分布于14、16、100层
包括室内外泳池、健身中心、水疗中心、
电影院、藏酒室、雪茄吧等等
可容纳126人的超大舞池

俱乐部首层拥有1400平方米的超大室外露台,并配有游泳池、更衣室、酒吧、餐饮服务和室外儿童游乐场。


第二层是健康管理中心,包含了室内游泳池、专业健身中心、标准篮球场、壁球场、桑拿浴、蒸汽室和治疗室。

最后一层位于大楼100层,高度超过300米,含有豪华宴会大厅、酒吧、红酒与雪茄品鉴室等等。

◼ 100楼餐厅,世界上同类设施中最高的休息室,可以俯瞰亿万富翁街(Billionaires’ Row)和中央公园(Central

◼ 舞厅效果图

◼ 雪茄休息室

◼ 复式餐厅翻新工程
02
An Architectural Landmark
全球建筑史上的巅峰之作!
“大楼之大”+大师之大“的
完美结合


Central Park Tower 坐落于曼哈顿West 57街,由Extell地产开发。因为Extell此前开发的One 57突破亿元售价,而被称为亿万富翁街。Central Park Tower 总售价高达40亿美元,有望超越One 57,成为史上最贵住宅楼。
由美国国宝级建筑事务所Adrian·Smith+Gordon·Gill Architecture设计。Adrian·Smith的建筑著作还包括:“世界第一高摩天大楼”迪拜阿利法塔、上海金茂大厦、深圳中洲万豪酒店等等。

◼ 中央公园壹号是世界最高住宅楼,是纽约全新地标建筑,是传奇的“亿万富豪大道”的传承者,是纽约乃至世

◼ 建筑师讲解设计
Central Park Tower 建筑不仅在物理上实现了人在地球上居住的制高点,也体现了最先端的建筑科技。

“在与全球最具才华的建筑师、工程师和设计师进行十年的规划与合作之后,我们创造了曼哈顿最新的标志性建筑。中央公园壹号带来了前所未有的设计、极致品质和顶尖设施。这座建筑将重新定义奢华住宅,并在纽约的地产史上留下浓墨重彩的一笔。”
——Extell创始人兼总裁 盖瑞·巴内特 Gary Barnett
179套超豪华住宅从地面上方约100米的高度开始,房型从1 - 4间卧室不等,有单间套房、全层、复式、三层住宅多种形态。公寓起价为700万美元(两居室),顶层公寓的价格可达9位数。

塔楼的拐角可以抵消风荷载,超大轮廓竖框连接的高性能隔热玻璃。外立面的玻璃与天空融合并将光线反射,建筑的重量仿佛会消失。

从远处看这座建筑,它给人以稳定感,同时也体现出了运动感。其玻璃外立面和类似细条纹的不锈钢鳍板创造出极具质感的外观,在白天向不同的方向闪烁,令立面具有深度感和丰富感。

中央公园壹号外观采用了玻璃,缎面不锈钢和明亮的水平细节组合元素,突出了质地和光线的相互作用。在距离街道300英尺的高度,塔楼向东悬臂,为所有朝北的住宅创造了中央公园的景色。

其北部直面中央公园——曼哈顿的主要走廊,哥伦布圆环和广场区的交汇处,是社会、文化和商业的汇聚点。

其不仅在物理上实现了人和地心的最远距离,也体现了建筑科技上的制高点。比如用水量会减少25-30%,塔楼的拐角可以抵消风荷载,超大轮廓竖框连接的高性能隔热玻璃,可捕获不同角度的阳光。

你必须知道的 :关于Central Park Tower
427米
公寓高427米,共131层
全球最高住宅建筑
超过帝王大厦实际楼层高度
西半球最高屋顶

超过90%
玻璃、不锈钢体和线条细节组成外观
采用“悬空建造技术”
超过90%的朝北住户
可饱览中央公园全景
179间公寓
公寓共179间公寓,11部电梯
两居室-八居室复式阁楼
32-128层豪华平层住宅区
129到131层位顶楼双层/三层复式住宅配私家电梯
5000人
超过5000人付出努力
耗时7年终将公寓建成
18000顿
中央公园壹号共耗18000顿钢筋混凝土建成
是纽约地王开发商Extell旗下另一奢华公寓One57的三倍还多

40亿美元
大楼总售价约40亿美元
平均每套公寓约2200万美元,约8万美元/㎡
现有空房最低售价690万美元
最贵为6300万美元,位于112层的五居室
钻石级地段
位于“亿万富翁大道”-曼哈顿57街
比邻*耐基卡**音乐厅、哥伦布圆环、洛克菲勒中心、时代广场、中央公园等

Central Park Tower中央公园壹号
高层实景图


03
美国有史以来最昂贵的公寓项目!
公寓售价高达6375万美元
开发商预计,这座建筑的售价将超过40亿美元,这将使中央公园大厦成为美国有史以来最昂贵的公寓项目。
城市中最雅致的住宅室内设计由Rottet Studio担纲,Rottet的设计以创造豪华体验而著称,每一个细节均质量上乘、风格隽永,以满足世界上最挑剔的客户。
179套超豪华住宅从地面上方约100米的高度开始,房型从1 - 4间卧室不等,有单间套房、全层、复式、三层住宅多种形态。公寓起价为700万美元(两居室),顶层公寓的价格可达9位数。
日/夜景观
再多浮夸营销词汇在这里都要认输
只要给出这两张照片霸气▼
想象你就是照片里的model
坐在这里需要有价值几亿的实力
令人无限遐想


坐拥哈德逊景观的主卧沐浴间
大尺度大惬意
太有魅力了

周日主卧午后
纽约的阳光洒进来

空间布局优雅,视野开阔。中央公园的非凡的景观,构筑了公寓的绝佳视野。可俯瞰帝国大厦和整个纽约市。OTIS的高速电梯连接了大厦内的垂直交通,其速度为每分钟609.9米,一分钟半即可抵达131层楼。


宽敞的尺寸、高挺的天花板以及私人露台,每间房屋都有宽敞的起居空间,手工材料和饰面均来自世界各地的卓越工艺。

精致厨房

复式豪华客厅沙龙
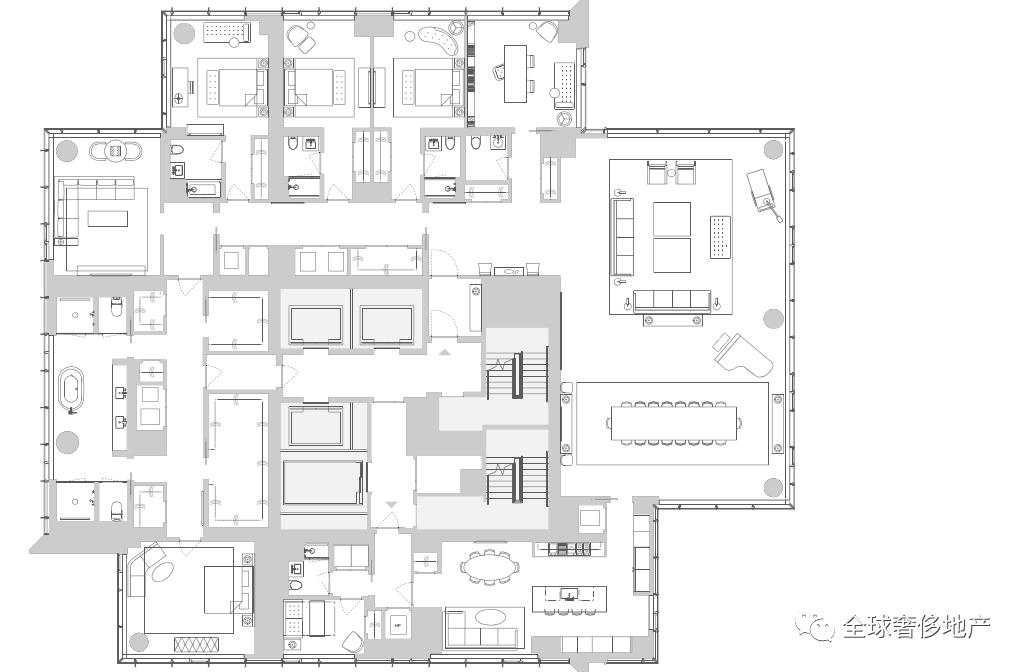
Entell认为这是他们最好的大平层户型设计
“the-finest-floor-plans”


central park tower 户型图 建筑设计:AS+GG/室内设计Rottet Interiors
中央公园朝向景观

朝西哈德逊河景观

朝东景观

朝南曼岛天际线景观

到目前为止,已经公布的挂牌房源的总价格仍然超过了40亿美元,其中一套面积为7074平方英尺、5.5个浴室、2114平方英尺、2.5个浴室的房源的起价为690万美元,而另一套面积为7074平方英尺、5个浴室的房源的起价为6300万美元。三层复式顶层公寓的价格尚未公布。
这座大厦预计将于今年年底竣工,179套住宅中的更多将在未来几个月进入市场。去年公布的少数房源中,有价值690万美元的两居室,也有价值6300万美元的五居室。尽管豪华公寓销售额不断下降,Extell 预计销售额将超过40亿美元,成为美国最昂贵的公寓楼。
这些房源的价格范围从33层价值690万美元(约合人民币4900万元)的两居室到大厦最高楼层价值6300万美元(约合人民币1630万元)的五居室。第一批交易预计将在2020年第一季度完成。
豪宅配置:百年经典Nordtrom旗舰店
美国高端百货Nordstrom 首家纽约旗舰店
位于公寓底部7层
占地约2.6万平方米
兼具艺术与时尚的购物中心

大楼的底部有一个大型Nordtrom旗舰店,去年年底向公众开放。这座七层楼的旗舰建筑由詹姆斯 · 卡彭特设计事务所(JCDA)设计,其独特的波浪形玻璃幕墙使其与塔楼的其他部分区分开来。

2019年10月24日,在这座住宅摩天大楼底层最新开业的Nordstrom百货公司,是该连锁百货在纽约市的第一家分店。
建筑主体依旧由AS+GG设计,其波浪起伏的外立面则合作James Carpenter Design Associates 设计。
Photography is by Connie Zhou.


这家商场室内采用了LED灯被用来照亮玻璃墙,而金属编织的锁链被用作窗帘来遮挡强烈的光线。





