
圣保罗郊外1000平米的湖边别墅,好似从大地上切了个长方形,整个儿连草地一起升起,裂缝中就是居所。

长方形的建筑顺应坡地等高线,沿南北向延展,东面有蛇形挡土墙,西面的坡下看去,呈现出消隐在地平线中的形态。所有的居住功能都被藏在了植草混凝土水平屋面下。



建筑师特别设计了建筑的第五立面。从高处看去,水平延展的屋面上由植被覆盖,点缀着天窗和些许太阳能板,与周边自然环境完美融合。






全屋没有梁。在开放式平面区域,无梁楼板直接搭在密斯式的十字形钢柱上;有房间的部分,楼板搭在承重墙上。



住宅主入口在北侧短边上,蛇形平面的镂空砖砌挡土墙,一直蜿蜒到入口花园,引导流线的同时也隔开了车库和住宅。凹凹凸凸的蛇形砖墙与正交的建筑形成对比。





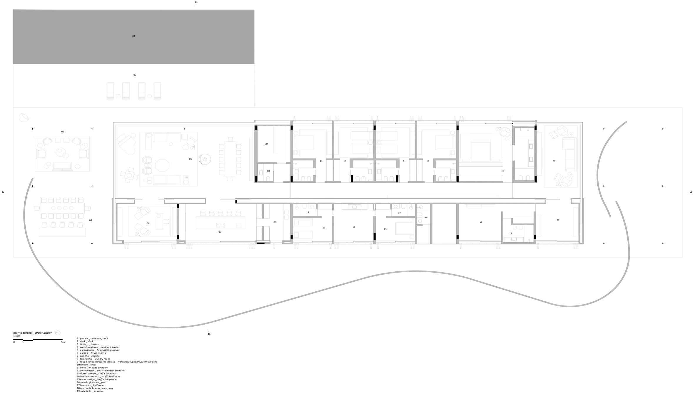
长方形屋面下,是两个平行的条形体量,沿南北向延展,其中靠挡土墙一侧的体量里是服务性空间,包括儿童游戏室、健身房、厨房、洗衣房、保姆间等。而靠缓坡景观较好一侧的体量里,包括了并排的五间卧室套房。






大小客厅都坐落在建筑南端,面向自然景观完全开放,落地玻璃移门完全敞开时,整个客厅就像自然山水中的一个观景平台。














走出客厅露台,下几个台阶,便是矩形泳池。







室内材料搭配也非常简单,主材只有木板和混凝土。
在这样丰富的自然环境中,只有最简单纯粹的建筑形式, 才能与自然和谐共生,而又从自然中鲜明的跳脱出来,带给观者心灵的震撼。





项目名称:Planar House项目地点:圣保罗,巴西建筑面积:1000.0 m²项目年份:2018建筑师:Studio MK27,Marcio Kogan + Lair Reis摄影师:Fernando Guerra | FG+SG

平面图

立面图
图片来自Dezeen,撰文:Tian
-------End-------
天天设计笔记,写给自己的笔记,分享给同好之人。
Tian,国家一级注册建筑师,独立设计师,从事建筑、室内、家居设计。
#极简# #建筑# #别墅# #室内设计# #景观#