

10月31日,徐州市规划局网站发布了5所学校的规划公示,都位于鼓楼区,分别是树德中学、沈孟路幼儿园、北辰小学、九里山小学、铜沛小学。另据都市晨报,鼓楼区今年年底将开建九龙湖小学,再加上在建的崇信小学,明年或将有7所学校投入使用。

根据徐州市规划局公示的方案和鼓楼区教育体育局的消息,这几个所小学的规划方案如下:

九里第一小学
即九里山小学,位于九里山西路北侧、三环西路东侧,用地面积48995平方米,总建筑面积25542平方米,建筑密度15%,绿地率35%,办学规模8轨48个班。今年年底开工,明年投入使用。

(九里第一小学总平面图)
该校区附近较近的二手小区包括美尔小区和九里城市花园,目前的二手房均价普遍在5200-6500元/㎡。附近新楼盘为玉潭花溪、泽信公馆。
北辰小学二期
在一期的基础上向西扩建,用地面积33750平方米,总建筑面积21564平方米,建筑密度18.81%,绿地率35%。还将建5000平米运动操场。今年年底开工,明年投入使用。从规划图纸上看,该校也会建有报告厅、和食堂,同时配有笼式足球场、篮球场和排球场。

(北辰小学二期总平面图)
该校区附近较近的二手小区包括徐矿金桂园、九里新苑等小区,目前的二手房均价普遍在7200-9500元/㎡。而距离较近的次新盘有苏宁悦城和港利上城国际,两家楼盘上批均价均在8000元/㎡左右。
铜沛小学
即苏堤路小学,位于苏堤北路东侧,铜沛路北侧,用地面积37302平方米,总建筑面积22348平方米,建筑密度19%,绿地率35%,办学规模8轨48个班。今年年底开工,明年主体工程完工。从规划图纸上看,该校不但建有图书馆、报告厅、风雨操场和食堂,还配有高端的笼式足球场、网球场和羽毛球场。

(铜沛小学总平面图)
该校区附近较近的二手小区包括沈场小区、苏堤小区、畔苑小区、金色里程、华润绿地凯旋门、和园爱家等小区,目前的二手房均价普遍在8000-17000元/㎡
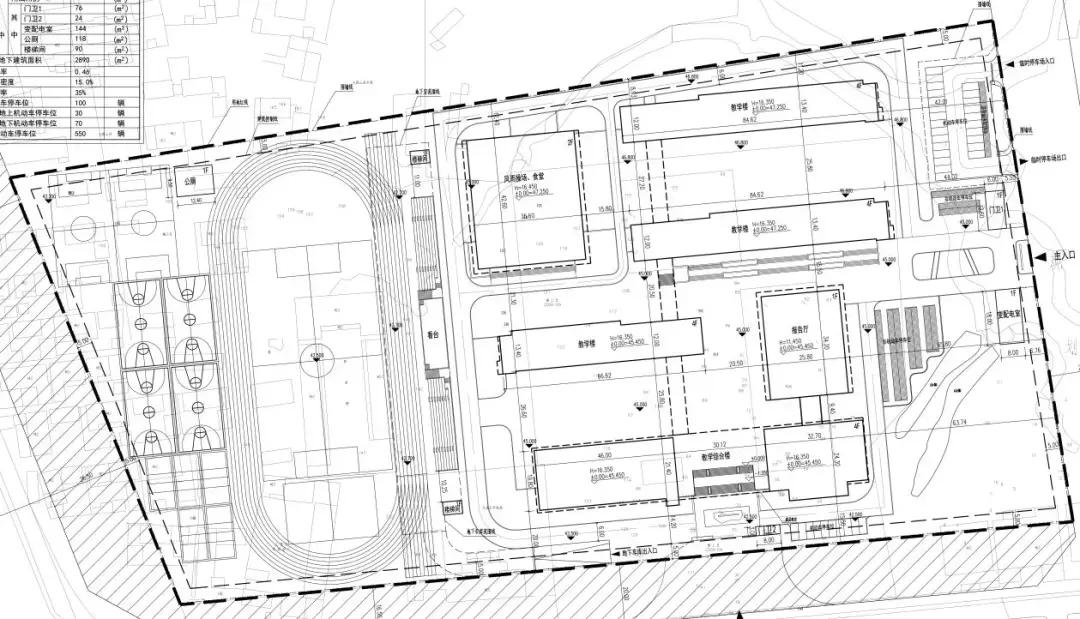
树德中学
位于天齐路以东,荆马河南路以西,用地面积15970.09㎡,用地性质为中小学用地,总建筑面积26833.11㎡,容积率1.33,建筑密度28.24%,绿地率35%。根据规划,学校建设了办公楼、教学楼、食堂、报告厅、宿舍等其它活动场所。

(树德中学新校区总平面图)
该校区周边还有徐州市第二中学以及正在建设的马场二小(九龙湖小学),距离区政府以及马场湖片区也很近。附近二手小区包括贵和苑、山水龙瑞、阳光军旅、怡康花园、山南小镇、华美生态园等小区,目前的二手房均价普遍在12000-14000元/㎡。
九龙湖小学
即马场二小,位于新马场湖路南、天齐路东,占地75亩,总建筑面积2.4万平方米,办学规模10轨60个班。今年年底开工,明年投入使用。

( 九龙湖小学总平面图)
沈孟路幼儿园
位于沈孟大道南侧,用地面积7092.92㎡,用地性质为中小学用地,总建筑面积5000.28㎡,容积率0.57,建筑密度27.86%,绿地率35.06%。根据规划,学校建设了教学楼、配电室等其它活动场所。

该校区附近较近的二手小区包括琵琶花园、滨河小区、华商清水湾、鼓楼花园等小区,目前的二手房均价普遍在8500-12000元/㎡。
崇信小学
正在建设的崇信小学也位于沈孟路南侧。崇信中学和小学占地共90亩,总建筑面积3.5万平方米,中学已投入使用,小学部明年完工。
7所新建学校全部位于鼓楼区,
建成后将大大提升北区的配套,
北区的家长、居民很高兴吧!
孩子上学更方便了,
处在学区的房子也能升值吧!
微信搜索:卡链
徐州本地众多商家免单、折扣 等你拿~