
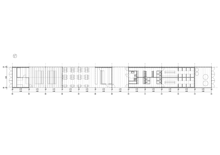
这个项目的大体顺序都以与独栋的、六十米长的线型建筑体量平行的停车的区域为中心,这栋建筑体量中包含了俱乐部的所有功能。因此,项目的程序是按照顺序设置的。机器房、更衣室、半遮盖的广告牌、多功能房间,所有这些程序都被设置在了被分解成了六米的空间中。灵活的空间中并没有位于中间的支点,这样的效果是通过在边缘上设置两个平行的金属柱廊和预制板达到的。

阿根廷Puertos Escobar足球俱乐部外部实景图

阿根廷Puertos Escobar足球俱乐部外部实景图

阿根廷Puertos Escobar足球俱乐部外部实景图

阿根廷Puertos Escobar足球俱乐部外部实景图

阿根廷Puertos Escobar足球俱乐部外部实景图

阿根廷Puertos Escobar足球俱乐部外部实景图

阿根廷Puertos Escobar足球俱乐部外部实景图

阿根廷Puertos Escobar足球俱乐部外部实景图

阿根廷Puertos Escobar足球俱乐部外部实景图

阿根廷Puertos Escobar足球俱乐部外部实景图

阿根廷Puertos Escobar足球俱乐部外部实景图

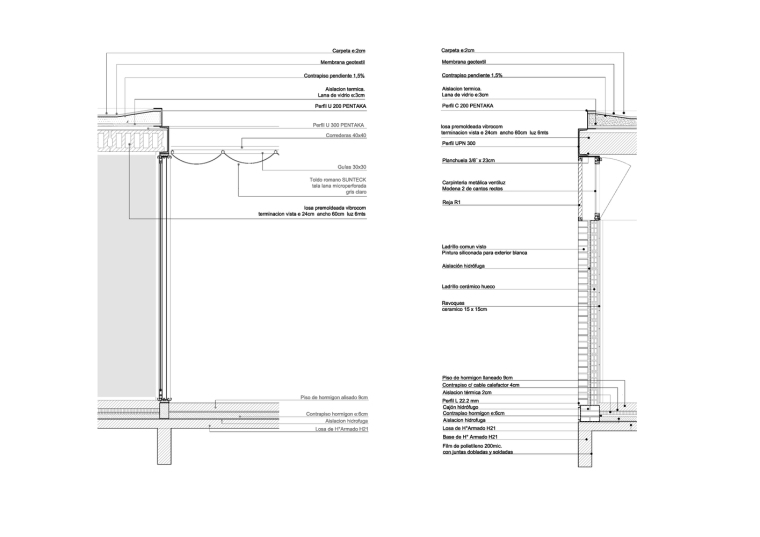
阿根廷Puertos Escobar足球俱乐部剖面图

阿根廷Puertos Escobar足球俱乐部立面图

阿根廷Puertos Escobar足球俱乐部立面图