
来源:百度文库、筑龙施工
版权归原作者所有
人防工程质量的基本要求
质量是一切产品的生命,建筑产品也不例外。人防工程的质量高于一切。人防工程是一种特殊的建筑产品,除应具备一般建筑产品质量基本要求外,还应满足人防工程的特殊要求。主要体现在四个方面。
1、防护可靠
人防工程在建筑、结构、通风、给排水、电气等各方面都有特殊的防护要求,对工程的整体性要求很高,必须做到防护可靠。为了达到防护要求,设计部门严格按照国家有关规范、规程、规定精心设计;施工部门要严格按照施工及验收规范、规程和设计图纸的要求精心组织、精心施工,使人防工程建设真正做到质量第一。
2、坚固耐用
人防工程的坚固耐用包括两个方面:既要平时使用时坚固耐用,又要战时使用时坚固耐用。战时的坚固耐用既包括结构安全,又包括战时的通风、给排水、电气、通信、隔震以及整体密闭性方面。人防工程必须满足结构强度要求,工程防水抗渗必须符合设计要求。人防工程主体均在地下,多属隐蔽工程,质量检查必须严格,一旦遗留后患,后果严重,地下工程的结构强度和防水、防潮除湿等是工程质量要求的主要指标之一,必须予以重视。
3、平战实用
人防工程要平战结合。作为基本建设投资,为充分发挥投资效果,在满足战时功能要求的前提下,尽量降低造价,为平时使用提供方便,但决不允许单为平时方便而损坏战时功能。
4、与环境协调
人防工程必须与周围坏境协调一致。既是城市环境美观的要求,又是人防工程掩蔽性的需要。
人防工程质量监督和施工依据
1、法律法规
主要有:《中华人民共和国人民防空法》、《中华人民共和国建筑法》、国务院《建设工程质量管理条例》以及地方政府出台的有关地方性法规
2、部门规章
主要有国家人防办或国家有关部委颁发的《人民防空工程建设管理规定》、《人民防空工程质量监督管理规定》(国人防<2010>288号)、《人民防空工程 施工图设计文件审查办法》、《人民防空工程建设监理管理规定》、《人民防空工程战术技术要求》、《工程质量监督工作导则》等有关文件。
3、技术标准、规范和图集
《工程建设标准强制性条文》(人防工程部分)、《人民防空工程设计规范》(GB50225-2005)、《人民防空地下室设计规范》(GB50038-2005)、《人民防空工程防护功能平战转换设计标准》(RFJI-98)、《人民防空工程防护设备产品质量检验标准》(RFJI02-2002)《地下工程防水技术规范》(GB50108-2008)、《人民防空工程施工及验收规范》(GB50134-2004)、《人民防空工程质量检验评定标准》(RFJ01-2002)、《防护设备试验测试与质量检测标准》、FG01-05(2007)、FJ01-03(2007)、FK01-02(2007)、05SFJ10、09FS01、FD01-02(2007)等专业性标准和规范。
人防工程的基本常识
1、人防工程的定义
人民防空工程是指为保障战时人员与物资掩蔽、人民防空指挥、医疗救护等而单独修建的地下防护建筑,以及结合地面建筑修建的战时可用于防空的地下室(《中华人民共和国人民防空法》)。
2、人防工程的类别
1)按建筑形式分类:单建式和附建式
单建式指单独修建的人防工程,工程之上基本没有地面建筑(允许有少量口部房间)。
附建式指主要建于地面建筑之下的人防工程(防空地下室:具有预定战时防护功能的地下室。在房屋中室内地平面低于室外地平面的高度超过该房间净高1/2的为地下室)。
2)按战时功能分为五大类:指挥通信工程;医疗救护工程;防空专业队工程;人员掩蔽工程;配套工程(指战时的保障性人防工程,区域电站、供水站,人防物资库,人防汽车库,食品站;生产车间;人防交通干(支)道,警报站,核生化监测中心等)。
3)人防工程组成:人防工程多建在地下且均有防护要求,因此它的各个组成部分各有特点。按作用分,可分解为围护结构、防护层、防护设备、建筑设备、建筑装修等;按有效空间的防护功能分,可分解为主体和口部;按有效空间的防毒能力分,可分解为密闭区(清洁区)和非密闭区(染毒区)。
人防工程的基本术语
介绍一些人防工程的常用术语
1.防护门:能阻挡冲击波但不能阻挡毒剂通过的门。
2.防护密闭门: 既能阻挡冲击波又能阻挡毒剂通过的门。
3.密闭门:能阻挡毒剂通过但不能阻挡冲击波通过的门。
4.门框墙:在门孔四周保障门扇就位并承受门扇传来的荷载的墙(包括与之相连的顶、底板部分)。
5.防爆波活门:简称活门。装于通风口或排烟口处,在冲击波到来时能迅速自动关闭的防冲击波设备。
6.密闭阀门:保障通风系统密闭的阀门。包括手动式和手、电动两用式密闭阀门。
7.自动排气活门:靠阀门两侧空气压差作用自动启闭的具有抗冲击波余压功能的排风活门。能直接 抗冲击波的称防爆超压排气活门。
8.防护密闭隔墙:既能抗御核爆冲击波和*弹炸**气浪作用,又能阻止毒剂通过的隔墙。
9.密闭隔墙:主要用于阻止毒剂通过的隔墙。
10.防冲击波闸门:防冲击波由管道到进入工程内部的闸门。
11.平时:和平时期的简称。指国家或地区既无战争又无明显战争威胁的时期。
12.战时:战争时期的简称。指国家或地区自开始转入战争状态直至战争结束时期。
13.临战期:临战时期的简称。国家或地区自明确进入战前准备状态直至战争开始之前的时期。
14.冲击波:空气冲击波的简称。核爆炸在空气中形成的具有空气参数强间断面的纵波。
15.冲击波超压:冲击波压缩区内超过周围大气压的压力值。
16.地面超压:人防工程室外地面的冲击波超压峰值。
17.核爆动荷载:核爆炸产生的冲击波和土中压缩波对人防工程结构形成的动荷载。
18.主体:人防工程中,能满足预定的防护要求,并能体现其主要功能的部分。一般指最后一道密闭门(若无防毒要求时,指防护门)以内的部分。
19.口部:人防工程中主体与地表面的连接部分。一般包括出入口和进排风口的门外通道、竖井、扩散室、密闭通道、防毒通道、洗消间(简易洗消间)、滤毒室以及窗井等。
20.主要出入口:指战时主要出入口。战时空袭后,人员或车辆出入较有保障,使用较方便的出入口。
21.密闭通道:在出入口的防护密闭门与密闭门之间或两道密闭门之间靠密闭隔绝作用阻挡毒剂等侵入工程内部的空间。
22.防毒通道:具有通风换气条件,依靠超压排风阻挡毒剂侵入的密闭通道。在室外染毒情况下,允许人员由此通道出入。
23.简易洗消间:在防毒通道一侧设置的供染毒人员清除局部皮肤上或衣物上有害物的房间。
24.洗消间:在防毒通道一侧设置的供染毒人员通过并清除全身有害物的房间。通常由脱衣间、淋浴和检查穿衣间组成。
25.密闭区:也称清洁区,人防工程中有集体防化功能的区域。
26.非密闭区:也称染毒区,能抵御预定的核爆动荷载作用,但允许短时间轻微染毒的区域。
应包括下列房间通道:
1)扩散室、密闭通道、防毒通道、除尘室、滤毒室、洗消间或简易洗消间;
2)医疗救护工程的分类厅、急救室、抗休克室、诊疗室、污物间、厕所等;
3)专业队装备掩蔽部、人防汽车库和电站发电机房等主体允许染毒的部分。
27.防护单元:在防护和内部设施方面均能自成体系的使用空间。
28.抗爆单元:为限制*弹炸**的爆炸波及碎片的破坏范围,在较大防护单元中用抗爆隔墙划分的使用空间。其防护和内部设施上不要求自成体系。
29.口部建筑(口部房):为便于管理和防雨、防堵塞而在室外出入口通道敞开段上部建造的地面建筑。
30.防倒塌棚架:建造在出入口或风口敞开段上方,在预定冲击波或地面建筑倒塌荷载作用下不致坍塌,可使出入口或风口不被堵塞的建筑物。
31.室外出入口:通道的出地面段、敞开段(无顶盖段)位于防空地下室上部建筑投影范围以外的出入口。
32.单元间平时通行口:为满足平时使用需要,在防护单元隔墙上开设的供平时通行、战时封堵的孔口。
33.滤毒室:装有通风滤毒设备的专用房间。
34.扩散室:利用内部空间来消弱由通风口或排烟口进入的冲击波能量的房间。
35.建筑面积:工程各层及出入口(不包括采光井、防潮层及其保护墙)外边缘所包围的水平投影面积之和。(某层如有部分层高超过2.2m的楼层者,亦应计算建筑面积。)
36.结构面积:工程各层的墙、柱等结构所占水平面积之和。
37.口部外通道面积:工程第一道防护门或防护密闭门以外的通道净面积。
38.口部面积:工程第一道防护门或防护密闭门以内、最后一道密闭门以外的通道和设备设施房间(含扩散室)的净面积。
39.辅助面积:工程最后一道密闭门(战时汽车库为防护密闭门)以内的生活设施、设备设施等辅助房间(如:厕所、风机房、泵房、水库(箱)以及楼梯间等)所占的净面积。
40.使用面积:工程第一道防护门或防护密闭门以内能提供人员使用、物资储存、车辆停放以及生活设施、设备设施使用的净面积。
使用面积=建筑面积-结构面积-口部外通道面积。
41.掩蔽面积:工程最后一道密闭门(战时汽车库为防护密闭门)以内能提供人员使用、物资储存、车辆停放的净面积。
人员掩蔽部工程之“掩蔽面积”亦称“人员使用面积”。
掩蔽面积=建筑面积-结构面积-口部外通道面积-口部面积-辅助面积。
人防工程施工注意问题
人防工程质量方面的特殊要求及施工中应注意的问题
1.人防工程底板下面的垫层采用砼标号不应低于C15;
2.水平施工缝必须高出底板上表面500mm,而不是300mm;
3.平战转换的出入口、通风口处的封堵框一定要与工程主体同步施工,不允许遗漏;
4.防毒通道或密闭通道处应预埋设备专业的短管,应逐个检查,不准少埋,不准后凿;
5.外墙、临空墙、防护密闭隔墙、密闭隔墙处不允许使用带PVC套管的对拉螺杆;
6.拉结筋是人防工程双面配筋的钢筋砼板、墙体必须设置的,其间距≤500,呈梅花形布置,除设计图纸要求不设之外,不得随意漏放;
7.洗消间、防毒通道等染毒的地方,为便于洗消彻底,不应设突出墙面的踢脚、墙裙,墙面、顶面和地面要平整光滑;
8.密闭通道、防毒通道处不应粉刷;
9.止水钢板连接处应焊接牢固;
基槽及防水验收
验槽时应注意:
一、集水坑的个数和位置,避免集水坑坐到 墙的位置上。
二、后浇带的位置,检查后浇带是否在人防工事的口部通过,若是,建议错开口部。

验收集水坑时注意:
1.集水坑底的标高。
2.放坡角度。
3.上口和下口的尺寸。



做防水注意:
1.搭接宽度
2.阴阳角做成圆弧
3.上翻部位的高度

防水上翻保护

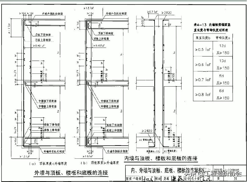
人防工程结构特点
人防工程结构既要满足作为上部建筑基础的要求,又要满足战时作为防护结构的要求。防空地下室常用梁板结构、板柱结构以及箱型结构等。
1、底板、基础
一般情况下,底板由平时工况控制配筋。
在梁板体系中,当底板上层钢筋与梁上层主筋标高相同时,板的上层钢筋放在梁的主筋上面.底板中板梁式结构的梁筋与板筋的位置关系:上排双向板筋均应从梁的主筋下方穿过。
2、人防墙体
人防墙体主要承受水平向的爆炸荷载作用,设计模型一般为单向板,下端固端,上端视顶板刚度来固端或简支。因人防墙体一般作为单独构件拿出来计算的,所以在进行结构设计时注意与周边构件的弯矩协调,加强了节点构造钢筋,以免因设计控制标准不一致而导致结构的局部先行破坏,失去整个防护建筑的作用,所以我们施工时多注意节点构造钢筋要求。
3、人防顶板
人防顶板是人防工程的重要受力构件,主要承受人防竖向荷载及提供必要的侧向刚度,人防地下室顶板一般采用梁板式和无梁楼盖两种结构形式


塔吊基础与筏板的连接:
1.在筏板的下面
2.作为筏板的一部分

塔吊基础作为底板的一部分



人防外墙:
1.生根墙的高度50cm
2.竖筋在底板处的锚固方式和长度
3.加强筋



临空墙:(一般受冲击波侧钢筋大,另一侧钢筋小)
定义:一侧受核冲击波直接作用,另一侧为不接触岩、土(包括人防工程内部)的墙体。




墙体节点的构造要求


1、人防门的洞口插筋及门槛钢筋设置
1)人防门的洞口插筋及门槛钢筋应在底板浇捣混凝土前按设计施工图及规范要求成型绑扎。
2)防护密闭门的门槛箍筋应该闭口,箍筋直径不得小于12mm,在箍筋角部应绑扎水平钢筋,水平钢筋伸入到门框墙的长度达到锚固要求,并与门框墙插筋绑扎牢。
3)人防门的门槛钢筋高出底板的高度应该满足各种型号的人防门门槛建筑高度。洞口的宽度尺寸应为:门宽尺寸 + 7cm ,人防门铰页侧门框最小宽度应满足人防门的安装尺寸,闭锁侧门框最小宽度应满足不会影响门扇的开启。
4) 第一道门宽度最小为30cm。
5)斜向加强筋长度110cm,45度角洞脚放置,型号以图纸要求。

门口上挡墙钢筋构造要求


单元连通口:两个防护单元间的门框墙及门槛(背靠背设置时)截面厚度不小于500mm。


插筋要看清图纸要求,注意型号、间距(摘选图纸)

门框配筋表




悬板活门、胶管活门的门槛箍筋(手枪箍)应该闭口,箍筋应拉住底板的下层钢筋,上下两个门槛的高度应符合要求,以免影响门的安装和开启。




人防门的安装
1、门扇安装应符合下列规定:
1)门扇上下绞页受力均匀,门扇与门框贴合严密,门扇关闭后密封条压缩量均匀,严密不漏气;
2)门扇启闭比较灵活,闭锁活动比较灵敏,门扇外表面标有闭锁开关方向;
3)门扇的零部件齐全,无锈蚀,无损坏。
人防墙体主要承受水平向的爆炸荷载作用,设计模型一般为单向板,下端固端,上端视顶板刚度来固端或简支。因人防墙体一般作为单独构件拿出来计算的,所以在进行结构设计时注意与周边构件的弯矩协调,加强了节点构造钢筋,以免因设计控制标准不一致而导致结构的局部先行破坏,失去整个防护建筑的作用,所以我们施工时多注意节点构造钢筋要求。
