
居住在一个可以漫步、文化多样和设施齐全完善的街区逐渐成为了一个令人格外梦寐以求的奢侈需求。而这所建筑就能满足这个需求。

该建筑位于西班牙,巴塞罗那。策略性住房将城市里的闲置土地,拥有改造发展空间的房屋甚至还有过于大的公共空间看作可以发展容纳住宅单元的机遇空间,再通过使用满足城市可持续、生态可持续和社会可持续发展条件的模块化预制建造系统,更快地执行完成建筑工期,这将比传统公共住房更经济、更合理并且更加支持可持续发展。

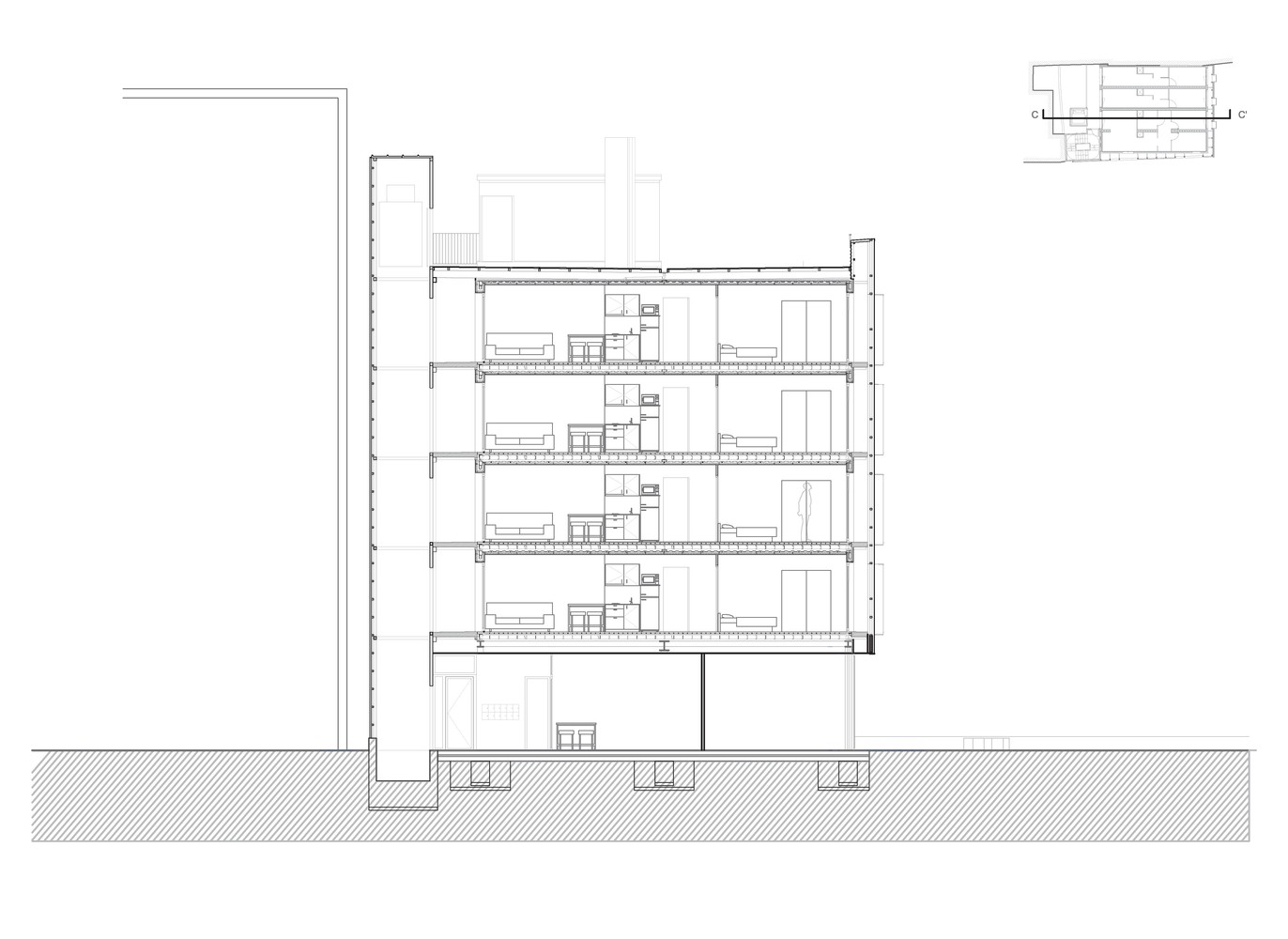
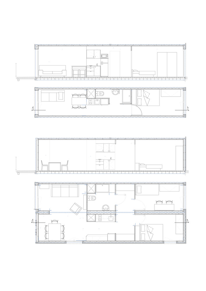
多亏使用了这些回收再利用的集装箱,这些模块化的建筑体量大大减少了它们所产生的生态足迹。一方面,集装箱的使用避免了大规模使用钢筋混凝土或者金属结构中的钢铸件时会产生的能源浪费和温室气体排放。另一方面,集装箱可以自由拆减、随意移动、方便运输以及能够适应其他地点的使用特点使其在拆除过程中减少能源消耗和废物产生。

建筑的东南面面向一条狭窄的街道,外立面上装有竖长的木制阳台落地窗框,阿利坎特( Alicante )风格的木制百叶窗帘和金属栏杆,这些元素和相邻的历史悠久的建筑相协调,使建筑融入周围充满历史气息的环境里。建筑西南面面向一个广场,四个两居室的住宅在这一面的外墙拥有更大的开窗。

建筑外立面和集装箱体量之间留有一定空间使空气流动实现通风,这层空间还可以给建筑内部起到保温隔热的作用,使这栋建筑拥有了最好的节能特点。建筑外立面覆盖的是一层半透明的波纹聚碳酸酯板。在白天,这个明亮、清透的外皮增加了室内亮度的同时又微妙地映照着周围的景色。在夜晚,这层外皮可以过滤透出室内的灯光,从而在保障了住户隐私的同时改善了临街照明。






