
什么是人民防空工程质量监督?
人民防空工程质量监督是一种行政监督。城市人民防空主管部门授权的专门机构开展质量监督,比如我们南京就有南京市人防工程质量监督站。人防工程质量监督的依据是国家或地方颁布的有关工程建设的法律法规和标准规范,它是全过程实施的质量监督。新建、改建、扩建的单建掘开式、坑(地)道式人民防空工程和结合地面建筑修建的防空地下室,均应接受人民防空工程质量监督机构的监督。

▲人民防空工程质量监督主要环节
对这些行为说不!
- 严禁监理单位承揽资质范围外的人防工程。人防工程监理企业资质分甲、乙、丙三级,具备国家人民防空主管部门规定的企业性质等相应条件,经人民防空主管部门许可,取得人防工程监理资质的企业,可以在许可范围内承揽监理业务。
- 严禁未经预埋各种人防防护设备设施(如:防爆地漏、集水井、门框、穿墙管等)就浇捣混凝土。
- 严禁未经隐蔽工程钢筋验收(未申报或未征询主管部门同意)就浇捣混凝土。
- 人防工程必须严格按照施工审核图纸施工,经过审核的施工图纸具有法律效力,任何单位、个人不得擅自修改。如遇特殊情况,确实需要变更施工图设计,应由设计单位作出设计变更,建设单位上报人防主管部门,并经审查机构审查通过后方可变更。
- 所有人防防护设备(包括各种防护密闭门、密闭门、悬板活门、防爆波地漏、超压排气阀门、密闭阀门、油网滤尘器、过滤吸收器以及设备附属管线等)必须由经省人防办备案认可资质的定点专门生产厂家制作并安装。
图纸会审
1设计交底
施工单位应要求设计单位将审查机构对施工图提出的审查意见的整改回复(即:设计变更)逐条进行交底,设计单位负责解答施工单位对设计图纸的疑问。这对施工中正确贯彻设计意图,加深对设计文件的难点、疑点的理解,确保工程质量有重要的意义。

工程各参建单位在收到施工图审查机构审查合格的施工图设计文件后,参加建设单位主持的图纸会审会议,并整理成会审问题清单,由建设单位在设计交底前约定的时间提交设计单位。图纸会审由施工单位整理会议纪要,与会各方会签。
2核对审核图
- 人防门启闭冲突
施工单位读图时,应详细阅读战时和平时两套图纸(有的人防工程战时和平时设计由两家设计单位设计),特别是两个设计院衔接部位不要漏读,如人防工程的顶板。

重点关注六大冲突:
(1)门的启闭不能与车位(尤其机械车位)冲突;
(2)门的启闭不能与梁、柱等结构构件冲突;
(3)门的启闭不能与通风管道冲突;
(4)门的启闭不能与给排水管道冲突;
(5)门的启闭不能与电缆桥架等冲突;
(6)门的启闭不能与防护设备(人防门、阀门、滤毒罐等)相冲突。
- “孔况图”
人防工程(附建式)施工图审查时,建设单位宜将地面全套施工图(包括风、水、电)一并送审,这样可以避免:地面设备管道穿越人防围护结构的问题。

同时,施工单位还应注意人防建筑、结构设计图纸中是否有“人防地下室预留预埋孔况图”,这样可以避免:主体结构施工完成后工程后开孔洞的问题。
- 多层地下室
多层地下室,建议设计单位将人防地下室设在最底层。

非标门
设计图纸中“非标门”、“非标封堵板”等防护设备无专业生产图纸,无检测标准。因此,一般情况下,未经市人防主管部门允许,严禁采用非标门。
有特殊要求的人防地下室,确需采用非标门的,应组织专家认证。
- 后浇带
后浇带严禁穿越人防工程口部、穿越人防门和防护单元隔墙!施工单位发现设计图纸中存在此类现象,应及时与设计单位联系沟通,在设计源头就杜绝此类现象!



底板部分
1构造规定
- 材料强度等级
地下室基础底板上层筋必须从地基反梁上层主筋下部穿过。


保护层厚度


- 拉结筋


人防围护结构战时受冲击荷载较大,梅花型拉结筋的设置作有利于抗剪,防止碎块脱落,保持砼的整体性。施工时注意控制好拉结筋的长度,太长会造成混凝土保护层不够或露筋,太短底板的厚度不够。

受力钢筋锚固长度


2施工缝
普通地下室侧墙水平施工缝高度为300mm;人防地下室为500mm。

止水钢板
- 外墙止水钢板在90度转角处不应直接对焊,应做弯折;
- 水平搭接长度不宜<100mm,且不少于双面满焊;
- 箍筋应上下贯通,被止水钢板割断的附墙柱箍筋应搭接焊在止水钢板上;
- 水平施工缝与底板表面高差应≥500mm。

3排水系统预埋
- 防爆波地漏
防空地下室的每个口部都设置了防护排水系统,它由集水井、排水管、防爆地漏等组成,底板施工时,该系统应预埋进底板。
底板上的集水井、排水管漏埋是无法整改的。
防爆地漏:战时能防止冲击波和毒剂等进入防空地下室室内的地漏。
防爆地漏管道材料为镀锌钢管,连接方式为丝接,需加麻丝,白厚漆。管道伸进集水坑100mm,焊接钢制弯头并接管至坑底200mm。地漏盖板标高低于地坪5~10mm,刷两道沥青漆,支口上黄油,保证盖板能在地漏支口内灵活转动。


集水井

4人防门框预埋
人防工程墙体的竖向插筋、人防门的门框、锚钩、八字加强筋、活(固定)门槛钢筋等应与底板钢筋一起绑扎到位。

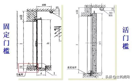
人防门槛高度
固定门槛:门槛与建筑地坪高差一般情况下应≧150mm(钢结构单扇人防门门槛≥130mm),钢筋绑扎高度宜≥250mm。
活门槛:门下无门槛,门前大小梁。门框下边与建筑地坪同高,钢筋绑扎高度宜≥100mm。人防门框锚钩应伸入结构层内。
防护密闭门、密闭门、悬板活门的开启方向必须面向冲击波来的方向。人防门框应预埋在靠近冲击波的一侧,一旦方向弄错,人防门战时将不起作用。

活门槛
活门槛正确做法:
1、人防门扇启闭方向设置两道梁;
2、两道梁间距宜控制在50-100mm;
3、梁高应根据建筑地坪高度控制。


钢筋混凝土人防门

钢结构单扇人防门



钢结构双扇人防门


防爆波活门

八字加强筋
人防门洞四角必须设置加强筋:长度1000mm,斜45º绑扎,墙厚≦400mm,每角2φ16;墙厚>400mm,每角3φ16。
人防门洞四角均应设置八字加强筋。



锚钩
人防门的双排锚钩应与底(墙)板钢筋一起绑扎到位。


门框钢管支撑
人防门预埋门框应采用独立支撑方式固定牢固,垂直度、水平度应满足规范要求。

钢结构活门槛双扇防护密闭门“米字” 支撑。

5人防门框堆放

墙板部分
1构造规定
- 外墙厚度、受力钢筋保护层厚度
人防地下室外墙厚度不宜小于300mm(250mm结构厚度+50mm保护层厚度)。
外墙迎水面钢筋的混凝土保护层为直接防水层,厚度不小于50mm(混凝土规范为50mm),防水层厚度不小于30mm。且两排竖向钢筋中:大直径的应放在外侧,小直径的应放在内侧。

外墙与底板钢筋锚固

非承重墙(砖墙)

2临空墙
- 一墙装双门门框墙厚
一墙装双门门框墙墙厚不小于500mm。

独立式室外出入口临空墙厚度

附壁式室外出入口临空墙厚度

室内出入口临空墙厚度

门框墙厚度及尺寸要求
防护密闭门、密闭门:绞叶(转轴)侧门垛长度≥ 400mm;闭锁侧门垛长度≥ 250mm;上档梁≥300mm;固定门槛≥150mm;嵌入墙内深度或保护门楣≥200mm。n防爆波活门:绞叶(转轴)侧门垛长度≥350mm;闭锁侧门垛长度≥ 150mm;上档梁≥300mm;
门槛高度≥ 150mm;
嵌入墙内深度≥300mm。

人防门门框墙尺寸

防爆波活门门框墙尺寸

门框墙配筋


门框检验
为确保万无一失,浇灌门框墙的混凝土之前施工单位还需征得防护设备生产安装厂家技术负责人的认可,一处一处检查,一处一处认可,避免出现门打不开或不能全开的现象;另外,严格控制地面标高,在施工现场常见到地面超高,门扇开关碰到地面受阻的情况。
浇筑墙体混凝土之前,应对所有预埋件(钢门框、铰页、锚固板等)的位置进行严格检查;预埋件周边尺寸是否满足要求,特别是门框位置必须准确、垂直度误差不得超过5mm、固定牢固,浇灌混凝土时严防位置移动,门的开启前方不能有柱子、梁等障碍物。

3模板
- PVC套管、混凝土预制件
严禁使用带PVC套管的拉结螺栓。人防工程墙体施工时,用于拉模板的螺杆(常称“对拉螺杆”)在穿外墙、临空墙、密闭墙时,“对拉螺杆”中间应设置密闭肋做法与止水环相似,拆摸后将螺栓切割断,再补孔抹平。施工单位为了增加摸板工具的周转使用次数,在地下室墙体中使用带套管的拉结螺栓,拆摸后留下无数通孔,严重影响了人防工程的密闭性与防水性。


4预埋管道
- 密闭穿墙套管

材质要求
预埋的钢管或钢套管均需双面满焊一道密闭肋(也可理解为较大的止水环),密闭肋的材料为5~10mm厚以上的钢板,肋高50~100mm形状可以是正方形也可以是圆形,先将钢板中间用氧割挖出一个圆洞,洞的直径略大于中间穿管的外管径,然后将密闭肋和中间穿管的接触面双面满焊。完成以上构造后才可浇灌混凝土。

出墙距离

密闭穿墙套管(战时风管)



密闭穿墙短管(防化值班室测压管)

密闭穿墙短管(滤毒室内三根预埋管)

密闭穿墙短管(气密性测量管)

战时给、排水和平时消防管道

电套管


弱电穿墙防护密闭措施

顶板部分
1构造规定



2避免顶板梁与人防门冲突


3禁止预留光面洞口
严禁各专业管道未经预埋而直接留洞。同时也禁止排水铸铁管、PVC管等直接埋墙(板)穿过。附建式防空地下室的上部建筑的排水管严禁穿越防空地下室的顶板,而应在顶板上部做处理。(这个矛盾很普遍,设计时可以考虑局部做夹层)
工程的外墙、顶板、底板均应采用防水混凝土。顶板不宜预留各种大小、种类的施工洞口。(如确需预留设备吊装孔的,施工时应注意整体性,做法与后浇带相同)
施工后浇带的做法要规范,否则极易成为薄弱环节。后浇时,首先打掉浮浆,然后对暴露的钢筋除锈,接触面要凿毛,再用提高一个标号的混凝土浇筑。
4预埋人防门吊钩
人防门前顶板上应预埋门扇安装用的吊钩,以便门扇的安装和维护。吊钩一般设在门扇中轴线上;钢结构双扇人防门应设置多个吊钩,间距为1000mm。吊钩出墙的距离一般为300~400mm。

