过去的2020年也许是对购房者来说最幸福的一年。由于疫情和调控政策的影响,在这一年里,各个项目纷纷以价换量,割肉回血,尤以张马为甚。 关注过张马片区的购房者们大概都了解,2019年-2020年,张马片区的厮杀极为惨烈,不少房企在此折戟。
正当人们对此津津乐道之时,2020年5月,天鸿万象东方以极高的性价比一鸣惊人,首开一炮而红,无疑是对张马片区各个楼盘的降维打击,更遑论其成熟的配套和优质的学区都令其他项目难以望其项背。
自万象东方开盘以来,成交量一直稳居市场前列,那么究竟是哪里吸引着如此多的购房者呢?接下来就由小U给大家介绍一下吧!
一、项目信息
项目位于新东站片区,地处历城区坝王路东侧、响泉路以南,天鸿公园大道东侧,容积率2.7,开发商为天鸿控股,物业为天鸿尊逸物业。

(万象东方位于整个“万象王国”的东侧)
项目规划35栋住宅,分为M1—M8共8个地块,包含7栋10层洋房、1栋11层小高层、18栋18层小高层、2栋24层高层、4栋27层高层、3栋33层高层,目前在售的户型面积为99平/107平/112平/124平/127平/129平/149平。

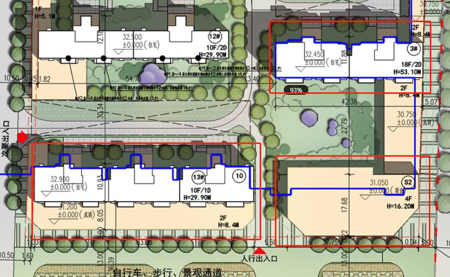
(地块规划图)

(地块鸟瞰图)






(户型图)
二、销售情况
2020年5月:首开4#、5#、6#、14#、15#、16#、24#、25#、26#、32#楼,共549套毛坯房源,户型为100㎡/108㎡/112㎡/124㎡/127㎡三室和129㎡四室,成交均价高层11500元/㎡,小高层12500元/㎡,洋房13800元/㎡,目前均已售罄。
2020年6月7日:加推33#楼,共176套毛坯房源,户型为99㎡/100㎡/107㎡三室,开盘当天成交150套,成交均价11600元/㎡,目前已售罄。
2020年8月:加推8#、18#楼两栋小高层,户型为112㎡/127㎡三室两厅两卫,一梯两户,共计128套,成交均价12700元/㎡,目前已售罄。
2020年9月:加推28#/35#/30#楼,共376套毛坯房源,28#楼户型为134㎡四室,成交均价为12700元/㎡;35#楼为112㎡/127㎡三室,成交均价12700元/㎡;30#楼为99㎡/100㎡/107㎡三室,成交均价11700元/㎡。目前除部分顶底房源外,已售罄。
2020年10月:加推1#楼,共200套毛坯房源,户型为99㎡/100㎡三室,成交均价11700-11900元/㎡。
2020年11月:加推7#/13#/27#/34#楼,共458套毛坯房源,13#楼为10层洋房,三个单元,109㎡/124㎡三室,成交均价13800元/㎡;27#楼小高层,149㎡四室,成交均价12800元/㎡;7#和37#楼为高层,成交均价11900-12100元/㎡。

▲2020年11月22日加推楼栋分布


▲2020年12月21日加推楼栋分布

根据小U在售楼处的了解,万象东方目前主推7#和34#楼,高层12100元/㎡左右,小高层12800元/㎡左右,而且3月份即将加推9#和17#楼,不过价格尚未公布。
万象东方的价格在附近的张马片区以及新东站片区内,毫无疑问是极具性价比的。对比张马片区的几个楼盘,目前都差不多处于清盘状态,价格也都在13000-15000元/㎡,而且张马片区的学校问题一直是各个项目的通病;唯一能和万象东方一争高下的是中粮祥云,但是中粮祥云的周边配套比较缺乏,新建学校只有小学,对口初中未知,和万象东方比起来有一定的差距。
三、光照分析
小U以即将于4月份入市的3#楼为例,给大家分析一下光照

小U建议选房顺序:
第一顺序:优质
第二顺序:很好
第三顺序:好
说明:
良:3小时<日照时长≤5小时
好:5小时<日照时长≤7小时
很好:7小时<日照时长<8小时
优质:8小时≤日照时长
判断依据:
依据(一)3#楼南侧(S2#)和西南侧(13#)建筑物的总高度以及楼间距等

依据(二)根据规划局公示文件数据建模,参考专业软件计算结果得出。
免责条款:由于规划设计变更,现场施工精度等影响,本日照测评与实际日照情况无法完全吻合,仅供购房者参考,最终以政府部门出具的数据为准。
四、工程进度
根据小U的实地勘察,目前5#、6#楼已经建设完毕,其他楼栋仍在建设中。


五、周边配套
1、交通万象东方向东500米为凤凰路,向南1.5公里为工业北路,交通是相当便利的;项目附近的地铁R3线目前已经通车,裴家营站距项目约400米,步行5分钟即可到达;另外,项目西侧800米,是规划中的地铁6号线,9号线王舍人北站设在凤凰路和响泉街交叉口,距离万象东方约500米,出行非常方便。
2、教育说到教育,不得不提的是,在济南来说,学校一直都是比较让业主们头疼的问题。比较好的情况是业主交了房,孩子就可以上学;情况一般的是交房的时候学校刚刚建好;再差的情况则是交了房学校还没建,这是最让业主头疼的,投诉无门,维权未果,更别说几家开发商共建学校的问题,那就更没影了。
万象东方则完全没有这些问题,早在2012年,万象新天学校便已签约了历城二中,距今已有8年,完全不用担心无学可上的问题,而且家长们对万象新天学校的成绩和校风也是赞不绝口。
除此之外,升学问题也不用担心。据小U了解,万象新天学校为小学+初中九年一贯制学校,实行统一的教学管理。
小U 在这里也提醒大家,除了学校的升学率要考虑之外,选择一所九年一贯制学校和各年级健全的学校也同样重要,之前小U 就遇到了很多购房者,因买房转校但是签约学校因生源较少对应年级无法开课,导致无法就近上学的问题一直困扰着购房者。

3、商业万象东方身处济南新东站核心区,距离已经开业的万虹广场大约2000米,附近还规划有大悦城、天街等商业综合体,未来商业环境非常好。值得一提的是,天鸿在凤凰路沿线的B3/B4地块的20万方商业综合体,“天鸿万象中心”也已投入建设,商业/SOHO办公已经开始销售运营,未来也是万象片区家门口的配套资源。


4、园林配套最让人称道的是天鸿早在2012年配建了建面约7万㎡的万象新天运动的森林公园。该公园在天鸿万象东方的西南方1公里,建设有3个足球场和3个篮球场;

另外,2018年10月,占地2万㎡的天使之城儿童公园也建成开放,与万象东方一路之隔,这也是为业主们打造的专属配套。

以上两个公园属于天鸿地产为业主配建的主题活动公园,仅供业主使用。除此之外,天鸿万象东方项目东侧2公里就是占地45万平方米的济钢森林公园,也为业主的娱乐休闲生活提供了众多的选择。
六、户型点评
主力户型100㎡,3室2厅2卫

优点:
1、户型整体比较方正,餐客一体,提高了空间利用率;
2、两室朝阳,并且都设计了飘窗,采光比较好;
3、主卧套房设计,并且南北通透,增加了私密性和尊贵感;
4、主卫和客卫都是干湿分离设计,干净卫生。
小U认为,近几年在济南市场上比较缺乏这种小户型,尤其难得的是天鸿地产真正考虑到了这些购房户的实际需求:既满足了购房者对于房屋的功能性要求,同样也满足了购房者对于生活仪式感的想象。小U去了样板间,对这个户型也是尤为喜欢,每个房间的布局和尺寸设计都发挥到了极致。
主力户型149㎡,4室2厅2卫

优点:
1、三室朝阳并且都设计了飘窗,采光比较充足;
2、主卧南北通透套房设计,增加了私密性和尊贵感;
3、私家电梯入户,一梯一户设计,拥有独立的电梯厅;
4、入户玄关设计,增加了房间的私密性和层次感。
七、产品分析
随着人们对居住需求的不断提升,2019年天鸿控股也开启了在济南新东站的产品升级之路。小U 的朋友购买的天鸿·公园大道交房时,小U应邀前往:外立面的真石漆,全瓷砖铺贴的电梯厅,园林景观、公共区域装修等部分,满满的仪式感让小U羡慕不已。

(天鸿·公园大道交房实景图)
小U到了万象东方售楼处,听到置业顾问的一番讲解,才知道万象东方项目又一次进行了产品升级。万象东方设计了八个景观院落,在小区里可以体验到大量的邻里共处空间:阅读主题的风雨廊架、中庭,邻里互动交流的座椅,环形跑道,在消防扑救面地面上设置的可移动羽毛球场……


(天鸿万象东方院落景观效果图)公共区域方面,地上地下双精装大堂、全地坪漆地下车库、标准层电梯间瓷砖铺贴、户内的窗子全面升级铝合金三玻双腔隔音设计、部分户型升级入户子母门、户内南向全飘窗设计、全面三室双卫最大化设计……

(万象东方首层大堂效果图)
八、写在最后
判断一个项目可不可以入手,市场成交数据是很重要的参考依据。小U认为,市场不会撒谎,万象东方自开盘以来,销量稳居市场前列,以2020年克尔瑞公布的济南销售情况来看,天鸿万象东方不论是销售面积还是销售金额都名列前茅,有如此多的购房者买单,不正是证明万象东方的优秀吗?

(克尔瑞数据为网签数据,万象东方实际成交数据远高于此)天鸿万象新天作为济南前三大盘,住宅后续还有近30万方,规模体量在东站仍然是首屈一指,霸主地位不可撼动,不过销售速度会降下来,以追求品质为主。今年还将推出20万方的教育综合体,商业、公寓、酒店量也很大,将导入更多的产业资源,提供更完善的配套,除了继续保持住宅影响力外,在济南的商办市场也将占据举足轻重的地位。
当然,即使小U把天鸿万象东方 说的 再好,也不如各位朋友去项目实地看一看,对这个项目真正了解之后再做决定。