提及上海,有些人会想到车水马龙的外滩,也有人会在脑海里浮现南京路步行街上的人来人往。可在这对夫妻的眼里,上海的灯红酒绿,也抵不过这座略显苍老的老房子。
这是一套位于上海巷弄里的老公房,是夫妻二人为儿子买下的学区房,夫妻二人花了2年时间改造,仅有61㎡的家,却打造了20㎡的后花园,堪称都市里的诗意之居。

▼设计理念及改造方案
在寸土寸金的上海,拥有一套房子实属不易。为了孩子上学,这对夫妻买下了这个仅有61㎡的老公房,而之所以看上它,是因为这座老公房位于6楼,附带了一个20㎡的天井。
热爱生活的夫妻二人,将这个家改造成了一个都市里的园林庭院,处处皆是鸟语花香。
▼设计图纸

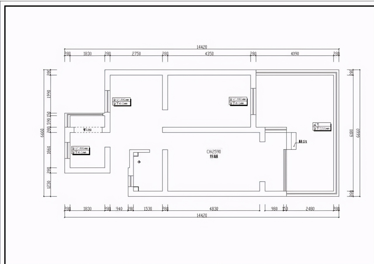
原始户型设计图
原有的房间格局,是一个常见的上海老公房户型,卧室朝南客厅朝北,并且客厅与厨房都很小,而且还得从花园中步入主卧,进出十分不便。

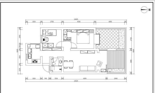
平面布局改造
为了让客厅不显清冷和阴暗,设计师进行了布局重新改造,客厅朝南,而卧室朝向南北。原有的客厅被改造成了儿童房,而主卧被改造成客厅。
改造后的行走动线,从客厅进入花园,显得更有日常居住氛围。一起来看看改造后的老公房实景。

▼改造后的玄关
在玄关的改造之中,设计师利用了墙面,打造了一个悬空嵌墙式的鞋柜,避免了空间浪费,也让整个玄关更显素雅之美。

同时玄关的墙面,粉刷了一层橙色的黑板墙,下方摆放着一组复古黑的换鞋凳。上方制作了吊柜,下方换鞋长凳,也加入了筹集设计,能够存放换季的鞋子,设计十分合理。

黑板墙的右上方,还钉上了几个金属挂架,能够挂置一些大衣和包包,可以说将储物功能并入了每一个小细节之中。

▼改造后的厨房
而黑板墙的左侧位置,便是厨房空间。厨房以L型的布局为主,因为空间太小,所以无法制作吊柜,但是设计师加入了两组宜家的壁柜设计,能够存放家里的瓶瓶罐罐。

厨房台面的设计,使用了人造石,雪白的色泽,搭配一些烟云纹理,拥有泼墨一般的美感,并且耐脏。
同时因为是小户型的厨房,怕油烟弥漫,设计师还加入了一组大功率的吸油烟机,让油烟不至于弥漫得到处都是。

因为户型小巧,因此每一个能够利用的空间,都被利用了起来。比如灶台下方嵌入了洗烘一体机。
而冰箱侧边的10公分空间,也被完美利用了,加入了一组抽拉式的缝隙柜,能够收纳不少的瓶瓶罐罐。
其实在常规厨房空间之中,针对一些小小的犄角旮旯位置,可以采用这种抽拉柜,避免了空间浪费,也让家里多了一些收纳空间。

▼改造后的客厅
而改造后的客厅,被设置在了南面,与阳台里的天井打通,并且安置了一个超大的落地推拉窗。
坐在客厅里,就可以看到天井里的后花园,草木生辉之景,阳光和风景都可以一览无余。

因为很少观看电视,因此电视背景墙也被取消了,转而以一个储物型的电视柜为主,满足客厅的储物需求。
而且上方还可以摆放一个小小的电视,方便男主人偶尔在家看看足球比赛。


而客厅的设计之中,以一组米白色的双人沙发为主,后方还设置了一组搁架,上面摆放了许多女主人收藏的小器物。
再加上一张原木风的茶几,以及一个muji懒人沙发,属于客厅的惬意感就随之而来了。


客厅里种满了许多花花草草,不仅拥有极佳的视野,而且还可以看到天井里的风景,这样一个兼具诗情和画意的老公房,真的算是上海里的静谧小天地了。


▼办公区域设计
而靠窗位置,设计师还为男主人打造了一个可以办公的小区域,一组木质沙发,将茶几移过来,这里就是一个静谧的办公区域。

▼改造后的餐厅
餐厅与客厅之间,以开放式的布局为主,而关于餐厅最重要的改造是:储物。在后方定制了一组超大的餐边柜,拥有“超级能装”的特点,家里的碗具和瓶瓶罐罐,都可以进行收纳。


开放式的布局,让天井里的阳光,能够顺着客厅,一直洒落在餐厅之中,看似古朴,却处处都是让人倍觉温馨的氛围。


▼改造后的卫生间
卫生间的洗漱池、马桶区和洗浴区布局显得明了简单,洗漱池上方加入了镜柜设计,台面显得整洁又清爽。


小小的卫生间,以浴帘来进行隔断,壁挂式的马桶,以及马桶上方的壁龛设计,都让这个卫生间布局显得更为合理,还多出了一丝收纳功能。

▼改造后的过道空间
而走廊里的过道空间,则被打造成了一个琳琅满目的书架空间,上面按照颜色摆放了许多夫妻二人珍藏的书籍和唱片,既是一个收纳空间,也成为了走廊里的点缀。

▼改造后的主卧
主卧空间的改造设计,以简约和清新为美,不管是软绵绵的床品,还是大面积的飘窗设计,都让这个空间散发着温暖的气息。

床头背景墙上并没有太多装饰,而是挂上了一个由树枝穿插而成的编织挂饰,让空间多了一丝异域风情。

主卧的飘窗,直通天井里的后花园,放眼望去一片绿色草木之景,这里的风景和采光都绝佳。
女主人特别喜欢坐在飘窗前,晒着太阳,看看书,或者喝一杯下午茶,惬意又自在。


▼改造后的儿童房
儿童房的空间设计,以一组高低床来进行设计,下方是休闲区域,上方则是家里小朋友的睡卧区域,为了保证安全,还加入了护栏设计。

床铺底下加入了一串彩灯,小朋友既拥有了一个属于自己的房间,也拥有了一个能够学习的小天地。
而储物式的楼梯设计,也不失为一个亮点,一个个原木抽屉,能够收纳许多小朋友的鞋物和玩具。


沙发一旁是一个拼乐高的小区域,沙发后方则贴上了森林感十足的壁纸,而正对面,则加入了一组宜家拼接式的衣柜,十分简约。

▼改造后的后花园
而天井花园的改造,是女主人的最爱。这个将近20㎡的空间,被打造成魔都里的小小院落。
春天时的花开,夏天时的繁茂,秋天时的落叶,还有冬天时的厚雪,这里如诗如画。


天井后花园设计之中,利用了防腐木进行分层设计,让花园拥有了层次感。而院内种满了许多花草,蓝雪花、夏瑾还有绣球花,都显得特别有韵味。


照片并不是同一个时期拍摄的,因此因为四季不同,庭院后花园里的景色也不同,夏天时的爬山虎,还有各种花草,真的十分美好。

真的特别喜欢这个位于巷弄里的老房子,而在设计师的理念之中,似乎随着时间的变化,这个庭院也变得更为诗意和美好,相映成辉的花草,是都市里的一抹诗意。



这个案例,其实小编之前分享过了,但是随着时间的流逝和转变,庭院真的越来越美了,忍不住又分享给大家一次。
仅有61㎡的家,对于热爱生活的人来说,就是一个小小的别墅吧!那么您喜欢这个老公房改造案例吗?欢迎评论区留言讨论。