1-3分钟学习CAD小技巧,责任、担当、使命-华云旭教育CAD教程!
使用软件:CAD2020软件。
丨缩放对象丨
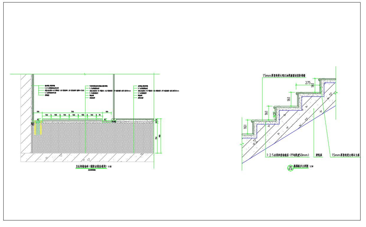
如图所示,虽然左边的大样图大,但是标注的尺寸比较小,我们很难看清楚,这个时候我们排版可以把左边的→卫生间墙地砖(做防水做法通用),成块放大两倍。

今天操作步骤如下:
Setup 1,如图所示,选中→卫生间墙地砖(做防水做法通用),输入B命令:

Setup 2,如图所示,为该块命名:

Setup 3,如图所示,指定插入点:

Setup 4,如图所示,确定:

Setup 5,如图所示,得到该块图形。

Setup 6,如图所示,把该块放大2倍,SC命令,输入放大该对象的数值2倍:

Setup 7,如图所示,移动该放大块对象的的位置,我们可以看到标注对象的数值没有变化,标注对象的尺寸变得清晰明了。

Setup 8,如图所示,我们再来看一下不成块放大两倍的效果。很明显标注对象的数值出现了变化,这肯定不是我们要的效果。

在这里给大家做个补充,用布局画图可以很轻松的解决统一图纸比例的问题。在这里暂时不做过多赘述。
每天勤学苦练,CAD不断改变,我们下节见!
华云旭教育CAD教程原创文章,转载请注明出处,更多优质内容请关注我们。
华云旭教育CAD教程:立一等品格,求一等学识,成一等事业!